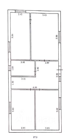
Код объекта: 1205518. Уникальная возможность приобрести просторный дом с землей для любителей загородней жизни в тишине, в то же время всего в 6 км от Калининграда в п. Солнечное. Ориентиры: Московский пр., п. Прибрежное , п. Заозерье, Кардиоцентр, п. Родники, п. Низовье. Дом строился для себя и с любовью! У дома своя концепция-эркономика. Пространство прорабатывалось архитектором, имеется дизайн проект. Дом 208,1 кв м на участке 12 соток , территория огорожена. Планировку дома можно посмотреть в изображениях объекта или запросить отдельно. Достоинства дома: -Газосиликатный блок Ytong - Полноценный "Белый ключ" (внутри все готово под чистовую отделку) -Центральное газовое отопление -Высота потолков в доме 3 метра - Электрика - Мощность, выделенная на участок с домом - 30кВт! - Сантехника - Отопление: водяной теплый пол по всему дому+радиаторы под окнами (реализовано газовом котле)с погодо-зависимой автоматикой. Скважина 50м с установленным насосным оборудованием - Канализация (локальная очистная станция) - Окна премиум класса с темным профилем и скрытыми петлями - Ливневая канализация - Телевидение - Интернет - Видеонаблюдение - Охранная сигнализация - Утепленный фасад - Натуральная черепица (Benders Швеция) - Большая терраса с печкой-мангалом - Забор из современных блоков - Воротная автоматика Система контроля и управления доступом - Грамотная планировка внутреннего пространства - Большое чердачное пространство ПОКАЗ В УДОБНОЕ ДЛЯ ВАС ВРЕМЯ Рассмотрим обмен на недвижимость на поберьежье Балтийского моря или коммерческое помещение в городе. Добавьте объявление в избранное, чтобы оно всегда было под рукой!










































































