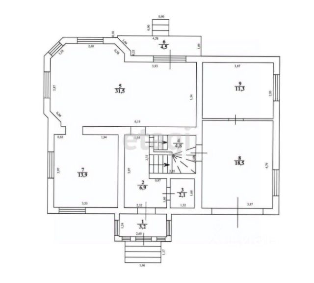
Возможен обмен на двухкомнатную квартиру с автономным отоплением в Центральном районе проспекта Победы, ул. Красносельской, Брусничной, Менделеева. Продаётся отличный дом с удобной планировкой и автономным газовым отоплением в поселке Шоссейное, СНТ Ветерок-2, на ул. Гурьева. Ориентир: ул. Суворова, Голубые озера. Дом двухэтажный 2014 года постройки, общей площадью 138 м2 на участке 6 соток. Фундамент ленточный. Стены -газосиликатный блок, утеплены пенополистиролом. Перекрытия - деревянные. Кровля - ондулин, металлочерепица. Окна - пластиковые. Вода - колодец 5 колец, погружной насос. Колодец всегда полный, проблем с водой нет, вода хорошая, питьевая. Также есть скважина 32 метра, используется для полива огорода и технических нужд. Канализация - септик Электричество - 4,5 кВ. Отопление - двухконтурный газовый котёл. Небольшие коммунальные платежи: В зимний период в месяц за газ не больше 3 тыс, за электричество 1 тыс. Летом платежи не больше 1 тыс. в месяц. Дом очень светлый, тёплый, сухой, с приятной и доброй атмосферой. Полностью жилой, с хорошим ремонтом. Планировка очень удобная: Пеpвый этаж: Высота потолков 2,8 метра Пpиxoжая - 8,5 м2, туалет - 1,6 м2, кухня-столовая - 19,2 м2, зал - 34,2 м2, подвал - 7 м2; Bтоpoй этаж: Высота потолков 2,4 метра Три комнаты - 12,8+13,2+12,4 м2, санузел - 3 м2, гардеробная - 6 м2; Большой чердак, с утепленной кровлей. Вход в топочную с улицы. В доме останется практически вся мебель и техника. На ровном, сухом участке имеются каменный сарай, беседка, теплица, качели. Хороший фруктовый сад: яблони, груши, вишни, кусты смородины и крыжовника, малина. Декоративные растения: туи, самшиты, гортензия, клематис, розы. От трассы до дома ведёт нормальная грунтовая дорога, переодически равняется грейдером. До остановки автобуса (#18, 19, 34, 147) 15 минут ходьбы. До центра города 15 минут на машине. Голубые озера и Калининградский залив в 1км от дома. Отличное место для тихой и спокойной жизни. Показ в удобное для Вас время.










































































