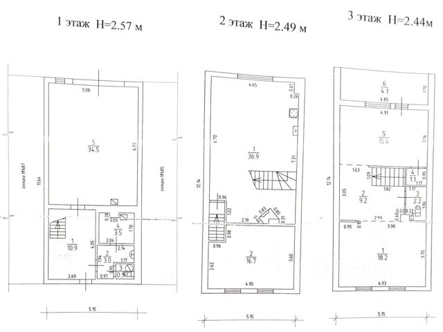
Код объекта: 1677945. Просторный дом с широким участком 12 соток — идеальный вариант для большой семьи или организации гостевого дома/апартаментов! О доме: • Кирпичный жилой дом 2007 года постройки, 2 этажа, общая площадь 200 кв.м; • Дополнительные постройки площадью 150 кв.м (баня, летняя кухня, мастерская) — всё для комфортного проживания и отдыха; • Участок 12 соток в собственности (зона Ж-3) с широкими возможностями для строительства и развития; Очень удобное расположение и инфраструктура: • Первая линия оживлённой улицы Аллея Смелых с высоким автомобильным трафиком и отличной видимостью; • Перекрёсток с улицей Двинская — удобный подъезд с двух улиц и возможность организации кругового движения; • Вся необходимая инфраструктура в шаговой доступности: магазины, аптеки, школы, детские сады, остановки общественного транспорта; • Густонаселённый жилой район и быстрый выезд на окружную дорогу обеспечивают комфорт и мобильность; • Отличное место для комфортного проживания большой семьи или успешного бизнеса гостевого дома/апартаментов. Коммуникации: • Автономное газовое отопление • Электричество 15 кВт с возможностью увеличения; • Городское водоснабжение + собственный колодец для технических нужд; • Биостанция для водоотведения. Возможности использования: • Просторное жилое пространство для большой семьи; • Организация гостевого дома или апартаментов с отличной транспортной доступностью; • Важное преимущество — участок 12 соток, где можно построить дополнительные здания или реализовать коммерческие проекты; • Зона Ж-3 позволяет использовать объект под магазины, офисы, социальные услуги и др. Возможности продажи: • Возможен обмен на жилую недвижимость с доплатой; • Торг и гибкая рассрочка; • Прозрачная сделка без обременений, все виды расчёта, полная сумма в договоре. • Полное безопасное юридическое сопровождение сделки, застрахованное в АО"АльфаСтрахование". Ориентиры: Московский район Калининграда, улицы Аллея Смелых, Судостроительная, Батальная, Олега Кошевого. Звоните или пишите 24/7 Лариса Дарим 300 000 рублей на путешествие! Покупайте или продавайте недвижимость вместе с агентством "Авеню-Риэлт Владис" и получайте шанс отправиться в путешествие Вашей мечты! Направление путевки Вы можете определить самостоятельно. Победитель будет выбран случайным образом в конце декабря. Подробнее узнавайте у своего агента или в офисах "Авеню-Риэлт Владис". Купить дом на улице Аллея Смелых в городе Калининград.










































































