


167 000 ₽/м²
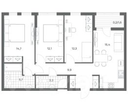
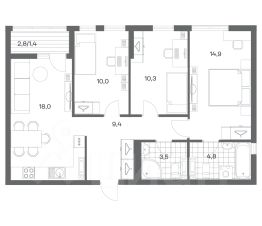
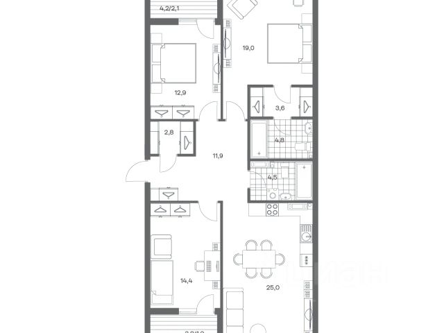
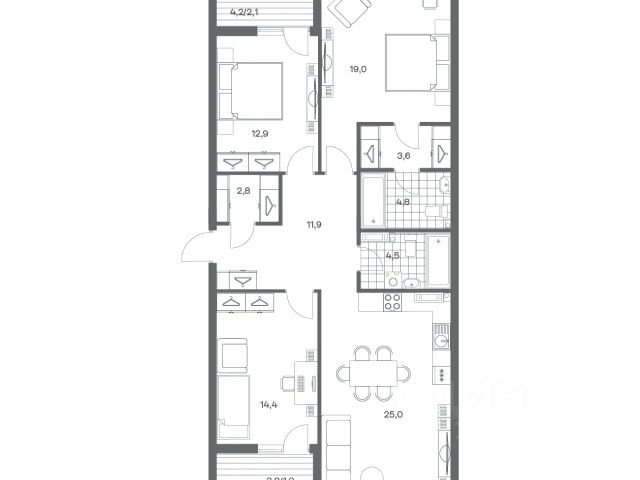
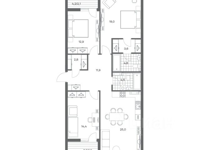
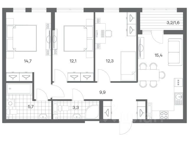
Продается квартира площадью 45.2 м² на 8 этаже 2 секции в Гагарина 30 от компании ГК "ТРЕСТ". Площадь кухни 20.3 м². Жилой комплекс комфорт-класса "Гагарина 30" расположен в Ленинградском районе Калининграда на улице Юрия Гагарина. Жилой комплекс включает в себя три корпуса высотой 9-18 этажей. Срок сдачи намечен на 1 квартал 2028 года. Жилой комплекс расположен в географическом центре города Калининград. Он знаменит Музеем янтаря, Королевскими воротами, Верхним и Нижним прудами, районами Альтштадт и Лебенихт. Из жилого квартала за 10 минут можно добраться до парков Тихий и Кальтхёфер. В жилом комплексе 457 квартир, из них 55% двух- и трёхкомнатные. Доступны варианты с просторными кухнями-гостиными, мастер-спальнями и кладовыми. На первых этажах расположены квартиры с приватными открытыми террасами. На верхних этажах лоджии с холодным остеклением, панорамными и увеличенными окнами. Высота потолков первого и последнего этажей - 3 м (кроме первого корпуса), остальных 2,72 м. Интерьеры МОП-ов выполнены в минималистичном стиле с контрастными, дополняющими друг друга материалами. Благодаря использованию светлых оттенков, природных текстур и декоративного освещения, пространство имеет большое количество света. В лифт-холле предусмотрена зона ожидания с мягкой мебелью. Почтовые ящики вынесены в тамбур, а рядом со стойкой домофона предусмотрена консоль для сумок. Дизайн-проект разработан студией Right design. Для удобства автомобилистов созданы подземные паркинги: на 125 машиномест и кладовые помещения. В паркинг можно будет спуститься на лифте комфортно людям, безопасно автомобилям! Продается квартира на улице Юрия Гагарина в городе Калининград.






















































































































