Мы используем куки-файлы. Соглашение об использовании
Общая площадь261 м²
Участок11,4 сот.
Материал домаГазобетонный блок
Этажей в доме1
Год постройки2026
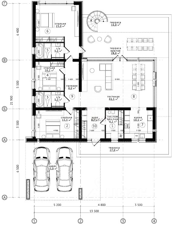
Арт. 134108720 Редкое предложение в эксклюзивной локации - дом в клубном коттеджном посёлке класса премиум на 1-ой линии Балтийского моря! Посёлок всего на 27 домов с единым архитектурным кодом (современная архитектура, плоские кровли). Дом общей площадью 261 кв. м (полезная площадь - 135 кв. м, навес - 55 кв.м, террасы - 71 кв. м) имеет продуманную планировку: Просторная гостиная с панорамным остеклением (41,5 кв. м) с выходом на крытую террасу (28 кв. м) с видом на закат. Отдельная кухонная зона. Мастер-зона, отделённая холлом, включает спальню (23 кв. м) и ванную. Две спальни (10,2 и 15,3 кв. м) с ванной комнатой. Техническое помещение под котельную и постирочную. Навес на 2 автомобиля. Эксплуатируемая кровля с винтовой лестницей для созерцания красивого морского заката Дом подключен ко всем необходимым инженерным сетям: Электричество 10 кВт с возможностью увеличения. Централизованный водопровод. Канализация ЛОС (локальные очистные сооружения) Асфальтированные проезды. Охрана 24/7. Дом продается в предчистовой отделке: Котельное оборудование (электрокотёл, бойлер, насосные группы). Водяной тёплый пол, радиаторы, стяжка. Разводка водоснабжения (ХВС/ГВС). Смонтированная канализация. Электрощит, разводка электрики, заземление. Слаботочные сети. Оштукатуренные стены, подготовка под чистовую отделку. Дом расположен в коттеджном посёлке "39/19" на берегу Балтийского моря. Всего 27 домовладений. До Калининграда 50 минут, до аэропорта 45 минут. В 100 метрах песчаный пляж с "Голубым флагом" ЮНЕСКО. Рядом 40 га лесного парка и прогулочные зоны. Такое предложение - настоящая редкость! Такие видовые участки не просто земля, а капитал, который растёт с каждым годом. Это возможность жить в гармонии с природой, наслаждаться тишиной и уединением. Звоните и записывайтесь на просмотр прямо сейчас!
Позвоните автору
Вам ответят на все вопросы

О доме

Площадь

261 м²

Материал дома

Газобетонный блок

Количество этажей

1

Количество спален

3

Год постройки

2026

Об участке

Площадь

11,4 сот.

Статус участка

Индивидуальное жилищное строительство

Коммуникации и удобства

Санузел

В доме

Канализация

Есть

Водоснабжение

Центральное

Отопление

Электрическое

Электричество

Есть

Газ

Нет

Спросите умного помощника
Получите экспертное мнение о жилье

Расположение

Подпишитесь на объявления в этой локации
Мы сообщим, как только поблизости появится что‑нибудь новенькое
Ипотечный калькулятор
  • Базовая
  • Семейная
  • ИТ-ипотека
  • 20%
  • 30%
  • 40%
  • 50%
лет
  • 10 лет
  • 20 лет
  • 30 лет
Загружаем предложения от застройщика и банков
Хотите продать недвижимость?Разместите объявление на ЦианРазместить
27 000 000 ₽
Цена за метр
103 448 ₽/м²
Ипотека
возможна
Агентство недвижимости
Документы проверены
На Циан
14 лет
Объектов в работе
189