Мы используем куки-файлы. Соглашение об использовании
Помещение свободного назначения, от 73 до 83 м²

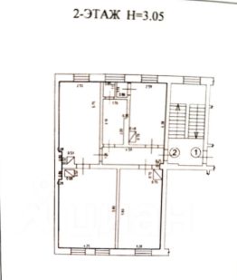
Продается помещение свободного назначения, 73 – 83 м²

Площади73 – 83 м²
Этаж2 из 3
ПомещениеСвободно
Отчёт о привлекательности объектаУзнайте, насколько помещение и район подходят для вашего бизнеса
Что входит в отчёт
  • Охват населения
  • Пешеходный трафик
  • Автомобильный трафик
  • Средний бюджет семьи по району
  • Арендные ставки рядом
  • Точки притяжения
  • Конкуренты в радиусе 1 км
  • Рекомендации по выбору места для бизнеса
Доступно 3 площади
73 м²
2 этаж
2 300 000 ₽
31 506 ₽/м²
80 м²
3 этаж
2 500 000 ₽
31 250 ₽/м²
83 м²
2 этаж
2 700 000 ₽
32 530 ₽/м²
УНИКАЛЬНЫЙ ДОХОДНЫЙ ДОМ В ИСТОРИЧЕСКОМ ЦЕНТРЕ ОЗЕРСКА Локация мечты: Калининградская область, г. Озерск, центральная площадь города Характеристики объекта: Общая площадь: 236 кв.м Аутентичная немецкая архитектура Один полноценный этаж (второй) + помещение на третьем этаже Собственный двор Подвальные помещения Просторные мансарды с окнами Огромный потенциал для: Мини-отеля / гостевого дома Туристических апартаментов Хостела премиум-класса Арт-резиденции для творческих людей Коворкинга с проживанием Событийной площадки Особенности: Объект требует капитального ремонта, что дает возможность создать пространство под ваши цели и стандарты. Историческая немецкая планировка и высокие потолки создают особую атмосферу. Собственный, закрытый двор можно использовать для дополнительных активностей. Большие возможности для зонирования пространства. Преимущества: Озерск (в прошлом Даркемен), расположенный в 8 км от польской границы, интересен не только сохранившейся европейской архитектурой и провинциальным шармом. Рядом с городом расположена единственная в области лыжная база с круглогодичными лыжными и сноубордистскими тренажерами. В теплые времена года Озерск привлекает туристов на сплавы по реке Анграпа. Рядом находятся коневодческое хозяйство. Город окружен живописными холмистыми долинами и расположен в получасе езды от посещаемого туристического хаба Черняховска. В этих местах находится Виштынецкий заповедник с потрясающими по красоте озерами и лесами Достопримечательности: первая в Европе гидроэлектростанция (1880 год), памятник первому уличному фонарю, кирха Даркемена, почта, исторические виллы. Все магазины, кафе в пешей доступности. Река Анграпа - в 300 метрах от площади. В настоящий момент в городе нет действующих отелей, предложения по посуточной аренде квартир ограничены. Туристическая привлекательность региона растет, несмотря на обстоятельства. Летом, когда побережье переполнено, многие стремятся найти уединенные уголки в области. Объявление от собственника. ЦЕНА СЕЙЧАС МАКСИМАЛЬНО НИЗКАЯ! В связи с развитием туристической инфраструктуры Калининградской области и растущим интересом к малым городам, стоимость подобных объектов неуклонно растет. Сегодняшняя цена - это ваш шанс войти в перспективный рынок по минимальным вложениям!
lock

Войдите или зарегистрируйтесь
для просмотра информации

Просматривайте условия сделки и всю информацию об объекте
Сохраняйте фильтры в поиске и не вводите заново
Доступ к избранному с любого устройства
Неограниченное добавление в избранное
Позвоните автору
Вам ответят на все вопросы
Остались вопросы по объявлению?
Позвоните владельцу объявления и уточните необходимую информацию.
  • Инфраструктура
  • Похожие рядом
  • Общая площадь83 м²
Естественная вентиляция
Помощь надёжных риелторов
Риелтор партнёр Циан поможет купить или продать любую недвижимость
СобственникID 134206097
    2 300 000 – 2 700 000 ₽
    от 31 901 до 36 271 $
    от 27 083 до 30 793 €
    Цена за метр
    от 31 250 ₽
    Налог
    УСН
    СобственникID 134206097