


220 000 ₽/м²
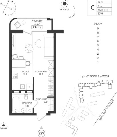
Прямая продажа от застройщика! ЖК "Вдохновение" - вторая очередь ЭКОквартала "Русская Европа". Срок сдачи IV квартал 2026 года. Впечатляющие квартиры с предчистовой отделкой, потолками 3,15 м и панорамным видом на парк. Уникальные преимущества: - Большой выбор современных планировок; - Собственная терраса и сауна в каждой квартире; - Автономное отопление и энергоэффективные системы; - Закрытая охраняемая территория с системой Smart-доступа; - Общественные пространства и гриль-зоны на крыше каждого подъезда; - Ландшафтный парк во дворе с уютными аллеями с зонами отдыха, детскими и спортивными площадками; - Подземный паркинг и кладовые в каждом доме. Расположение комплекса: ЖК "Вдохновение" находится в престижном Ленинградском районе Калининграда в15 минутах от центра города. Удобный выезд на побережье Балтийского моря (25 минут) и в аэропорт (20 минут). Рядом остановка общественного транспорта. О проекте: ЭКОквартал "Русская Европа" ежегодно признается одним из лучших жилых комплексов России и отмечен знаком "Жилой комплекс 1 г. Калининград (рейтинг ЕРЗ.РФ). Это безупречное решение для тех, кто не боится лидерства и высоты, не ищет простых путей, держит высокую планку во всем, не останавливается на достигнутом и живет в ритме мегаполиса. Полная социальная инфраструктура на территории комплекса: - Новая школа; - Детский сад; - Детская поликлиника. Горящие предложения: - Ипотека от 1,5% для всех; - Рассрочка 0% на период строительства; - Семейная ипотека 3,5% на весь срок; - Ипотека для IT-специалистов 4.2% . Больше подробностей о квартирах жилого комплекса "Вдохновение" и уникальное предложение для вашего бюджета - по телефону отдела продаж! Звоните! Продам квартиру-студию первичка в Калининградской области.























































































































