






174 757 ₽/м²
Застройщик - МакроСтрой, год постройки - 2024 год. ЖК "РЫБНОЕ-3", Класс ЖК - комфорт, стены - кирпич-монолит, территория закрытая, паркинг - открытый, 95 мест, детская площадка, спортивная площадка, 200 метров до Балтийского моря. Продаётся однокомнатная уютная и компактная квартира, расположенная на 4 этаже пятиэтажного дома в живописном прибрежном городке Балтийского моря — Пионерском Курорте! Общая площадь - 30,9, кухня - 8,9, спальня - 11,4, пластиковые окна, санузел - совмещённый - 3,1, прихожая - 6,2, лоджия - 2,6 панорамные окна, высота потолков - 2,7. Лифта нет. Имеются счетчики на холодную воду, газ, эл.энергию, горячая от теплосетей (нагрев от двухконтурного котла газом), домофон, также кабельное телевидение. Отделка - серый ключ. Свободная продажа. Юридически и физически свободна, 1 собственник. Этот городок привлекает внимание своим стремительным развитием и благополучием, что делает его идеальным местом для покупки жилья как для личного пользования, так и для выгодной аренды. Пионерский Курорт — это оазис спокойствия и уюта. Квартира, расположена в зелёной зоне, где царит тишина и гармония с природой. Вся необходимая инфраструктура находится в шаговой доступности: магазины, медицинские учреждения и живописные природные ландшафты. Удобное транспортное сообщение позволит легко добраться как до Калининграда, так и до ближайших приморских городов — регулярные автобусы и электрички сделают поездки комфортными и быстрыми. Квартира наполнена светом и теплом, идеально подходит для того, чтобы наслаждаться каждым мгновением у моря. Отличное место для отдыха, а также перспективный объект для сдачи в аренду. Автономное отопление обеспечит комфорт в любое время года. Не упустите шанс стать владельцем этого замечательного жилья в одном из самых привлекательных уголков Балтики! Звоните и записывайтесь на просмотр уже сегодня! .






174 510 ₽/м²
Теодор Кроне — современный жилой квартал класса комфорт+ в Центральном районе Калининграда с собственным спа-комплексом и комьюнити-центром. Здесь продумано все для тех, кто ценит качество, эстетику и полноценную жизнь рядом со всем необходимым. 99% повседневных услуг уже на территории жилого комплекса. Жить в "Теодор Кроне" — значит тратить меньше времени на быт и больше на себя. 3 очереди строительства: 1 очередь - сдана, 2 очередь 1 этап - ввод июль 2026 года, 2 очередь 2 этап и 3 очередь - ввод 2030 год. Уникальные особенности проекта: СПА-центр и фитнес-зал в доме Современный коворкинг Детский клуб и бьюти-салон Кинозалы и амфитеатр для культурных мероприятий Сервисы для жизни: прачечная, химчистка, аптека, поликлиника, супермаркет, пункты выдачи заказов, кафе-пекарня у дома Собственная управляющая компания с дополнительными сервисами: прокат, домашний мастер, клининг Квартиры выполнены в предчистовой отделке White Box Дизайнерские входные группы и лобби Транспортная доступность: Удобный выезд на основные транспортные развязки — вы быстро доберетесь в любую точку города. До побережья Балтийского моря можно доехать за 20 минут. В пешей доступности школы, детские сады, городской парк "Теодор Кроне", собственная набережная, озеро, прогулочные и велосипедные маршруты, историческая кирха Юдиттен. Для покупателей квартир действуют все ипотечные программы (IT, семейная, военная, стандартная) и материнский капитал в качестве первого взноса. Допускается рассрочка с первоначальным взносом, а также 100% оплата за собственные средства. Помощь с оформлением сделки от ипотечного брокера и юристов застройщика. Больше подробностей вы можете узнать по телефону отдела продаж,проведем консультацию в удобное для вас время. Звоните! Не является публичной офертой, предложение ограничено, оценивайте свои финансовые возможности и риски. Застройщик: ООО Специализированный Застройщик Эко-Город. Проектная декларация размещена на сайте наш.дом.рф. Сроки, условия проведения акций и актуальные цены на сайте девелопера. Когда вы выбираете недвижимость от К8 — вы выбираете комфортную, продуманную и растущую в цене среду для жизни или инвестиций. Что вы получаете: 1. Недвижимость, которая дорожает: каждый проект создаётся так, чтобы его ценность росла. Вы покупаете актив, который работает на вас. 2. Продуманные концепции: вы живете в пространстве с идеей, смыслом и логикой - где каждая деталь служит вашему удобству. 3. Настоящий комфорт: планировки, которые экономят место и время. Дома, где технические решения подчинены вашему образу жизни. 4. Эстетику, которая радует каждый день: архитектура, на которую приятно смотреть, и окружение, которое радует. 5. Качество, которое чувствуется: материалы, инженерия, благоустройство - вы видите и ощущаете результаты внимательного подхода. 6. Заботу на всех этапах: вам помогают подобрать недвижимость именно под ваши цели: для жизни, отдыха или инвестиций - в Светлогорске, Зеленоградске и Калининграде. 7. Возможность стабильно



246 455 ₽/м²
В продаже комфортная квартира с РОСКОШНЫМ ВИДОМ НА МОРЕ ! Бонусом - фантастические балтийские закаты и освежающий морской бриз, приправленный сосновыми ароматами. Локация: Дом кирпичный, 5-этажный, находится в очень удачном месте — на первой линии, практически за домом (всего 50 м) - оборудованный спуск к пляжу, а прекрасный Парк Беккера - в 3х минутах ходьбы. Тихий курортный район с атмосферой уюта и приватности, в пешей доступности до всей необходимой городской инфраструктуры. Что внутри: Просторная квартира - студия, 42,6 кв.м (без учета балкона). Удобная планировка квадратной формы позволит ее эргономично зонировать на кухню, спальню и зону отдыха. Много мест хранения: в комнате и прихожей - два вместительных встроенных шкафа. Открытый балкон с мебелью для отдыха позволит наслаждаться живописнейшими видами моря, завораживающими закатами и романтичным ночным небом. Автономное отопление (экономично!). Отсутствие незаконных перепланировок (спокойно!). Подходит для постоянной жизни, сдачи в аренду или как квартира выходного дня. Почему это выгодно? • Стабильно растущий потенциал аренды в сезон; • Высокодоходный инвестиционный объект у моря; • Привлекательная локация, которая всегда в спросе. Квартира на Побережье, с потрясающими видами на море будет всегда ликвидна и интересна, как туристам, так и для своего проживания. Звоните, пока такой вариант не забрали! Идеальное вложение в курортную недвижимость! Агентство "Союз профессиональных риелторов" - эксперт на рынке жилой и коммерческой недвижимости Калининградской области. Комплексное сопровождение сделок любой сложности обеспечивают опытные агенты, сильный юридический штат и свой ипотечный брокер. Мы дорожим своей репутацией! РАБОТАЕМ ДЛЯ ВАС - БЫСТРО, ВЫГОДНО, БЕЗОПАСНО! Остались вопросы? Звоните! Не откладывайте покупку этого уникального объекта! Арт. 135117267






157 800 ₽/м²
Квартира 291. КВАРТИРА НАПРЯМУЮ ОТ ЗАСТРОЙЩИКА В ЖК "АЛЬПЕНШТАДТ" СОВРЕМЕННЫЙ ЖИЛОЙ КВАРТАЛ Комфортная среда для жизни уже сегодня. ЛОКАЦИЯ: удобный район с быстрым выездом 15 минут до центра Калининграда 30 минут до моря О КОМПЛЕКСЕ: зелёные аллеи и благоустроенная территория двор без машин, приватные зоны отдыха современные детские и спортивные площадки подземный паркинг кладовые помещения велопарковки О КВАРТИРАХ: продуманные планировки светлые помещения, панорамные окна современные инженерные решения Качественная отделка (НЕ СЕРЫЙ КЛЮЧ) гипсовая штукатурка стен стяжка по технологии "плавающего пола" тёплый пол в ключевых зонах окна с высокой тепло- и шумоизоляцией надёжная входная дверь ДОПОЛНИТЕЛЬНО: есть возможность приобрести квартиру с ремонтом от застройщика — в том числе в ипотеку СПОСОБЫ ПОКУПКИ: ипотека ДЛЯ ВСЕХ от 6% скидка при 100% оплате семейная ипотека от 4.6% IT-ипотека от 4.6% ипотека ДЛЯ БЕРЕМЕННЫХ траншевая ипотека рассрочка и отсрочка платежа трейд-ин (обмен вашей недвижимости) Напишите или позвоните — подберём квартиру и рассчитаем условия под ваш бюджет.



175 000 ₽/м²
Пpoдам уютную 2-х комнaтную студию в цeнтре горoда Зeленогрaдскa. - Квартиpa нaxoдится на 3-м этаже 5-этажногo домa. -Cтудия нaxoдится в 2-x кoмнaтном блоке, т.e cанузeл oбщий с eщё одной кoмнатой, в котоpой прaктичecки никтo нe проживaeт. В дaльнeйшем её можно будeт выкупить. - Окнa выходят на улицу и нa паpк. -B квартирe выполнен качественный евроремонт. -Остаются мебель и техника. -До моря очень близко, 5-10 минут ходьбы. -Зеленоградск очень красивый город! -Можно купаться в море и отдыхать на пляже! -Много развлечений и интересных мест, где можно хорошо провести время и отдохнуть! -Также можно сдавать в аренду!






641 791 ₽/м²
!!! Когда в одной квартире сочетается все воедино: Видовая квартира, прекрасная локация и дизайнерский ремонт с эксклюзивными предметами интерьера! Представляете, что вы выходите на уютную лоджию с чашечкой кофе и любуетесь видом на море и наслаждаетесь пением птиц! Это прекрасное вложение для инвестиций! Вашему вниманию представлены Апартаменты в малоквартирном доме со своей огороженной территорией, в самом историческом районе Зеленоградска, с которых открывается панорамный вид на Балтийское море, рядом парк отдыха с прогулочными дорожками, озером, милыми фонтанчиками, променад для прогулок, а так же милые кафе с хорошей гастрономией. В апартаментах все сделано с изысканным вкусом! Мебель и техника,производство Италии; предметы интерьера Франция и Германия, многие сделаны под заказ. Мебель Ligne roset, Rolf Benz. Большая лоджия с подогревом позволяет уютно проводить время и любоваться на закаты, панорамные раздвижные двери дают возможность ощутить простор. Складные двери на лоджию, а так же при входе в комнату придают не только элегантность, но и экономят площадь пространства. Отопление автономное, котлы во всех апартаментах вынесены в отдельный тепловой узел, но в помещении вы контролируете температуру сами. В доме есть помещения для хранения колясок и велосипедов, ухоженная придомовая территория, лифты. Полный видео обзор апартаментов предоставлю по желанию ! На видео обзоре она еще более изыскана ! Прямая продажа, один собственник, вся сумма в Договоре.






172 488 ₽/м²
Теодор Кроне — современный жилой квартал класса комфорт+ в Центральном районе Калининграда с собственным спа-комплексом и комьюнити-центром. Здесь продумано все для тех, кто ценит качество, эстетику и полноценную жизнь рядом со всем необходимым. 99% повседневных услуг уже на территории жилого комплекса. Жить в "Теодор Кроне" — значит тратить меньше времени на быт и больше на себя. 3 очереди строительства: 1 очередь - сдана, 2 очередь 1 этап - ввод июль 2026 года, 2 очередь 2 этап и 3 очередь - ввод 2030 год. Уникальные особенности проекта: СПА-центр и фитнес-зал в доме Современный коворкинг Детский клуб и бьюти-салон Кинозалы и амфитеатр для культурных мероприятий Сервисы для жизни: прачечная, химчистка, аптека, поликлиника, супермаркет, пункты выдачи заказов, кафе-пекарня у дома Собственная управляющая компания с дополнительными сервисами: прокат, домашний мастер, клининг Квартиры выполнены в предчистовой отделке White Box Дизайнерские входные группы и лобби Транспортная доступность: Удобный выезд на основные транспортные развязки — вы быстро доберетесь в любую точку города. До побережья Балтийского моря можно доехать за 20 минут. В пешей доступности школы, детские сады, городской парк "Теодор Кроне", собственная набережная, озеро, прогулочные и велосипедные маршруты, историческая кирха Юдиттен. Для покупателей квартир действуют все ипотечные программы (IT, семейная, военная, стандартная) и материнский капитал в качестве первого взноса. Допускается рассрочка с первоначальным взносом, а также 100% оплата за собственные средства. Помощь с оформлением сделки от ипотечного брокера и юристов застройщика. Больше подробностей вы можете узнать по телефону отдела продаж,проведем консультацию в удобное для вас время. Звоните! Не является публичной офертой, предложение ограничено, оценивайте свои финансовые возможности и риски. Застройщик: ООО Специализированный Застройщик Эко-Город. Проектная декларация размещена на сайте наш.дом.рф. Сроки, условия проведения акций и актуальные цены на сайте девелопера. Когда вы выбираете недвижимость от К8 — вы выбираете комфортную, продуманную и растущую в цене среду для жизни или инвестиций. Что вы получаете: 1. Недвижимость, которая дорожает: каждый проект создаётся так, чтобы его ценность росла. Вы покупаете актив, который работает на вас. 2. Продуманные концепции: вы живете в пространстве с идеей, смыслом и логикой - где каждая деталь служит вашему удобству. 3. Настоящий комфорт: планировки, которые экономят место и время. Дома, где технические решения подчинены вашему образу жизни. 4. Эстетику, которая радует каждый день: архитектура, на которую приятно смотреть, и окружение, которое радует. 5. Качество, которое чувствуется: материалы, инженерия, благоустройство - вы видите и ощущаете результаты внимательного подхода. 6. Заботу на всех этапах: вам помогают подобрать недвижимость именно под ваши цели: для жизни, отдыха или инвестиций - в Светлогорске, Зеленоградске и Калининграде. 7. Возможность стабильно



198 511 ₽/м²
Код объекта: 1621886. Квартира-студия. Общая площадь - 40,3 кв. м. с функциональной планировкой, позволяющей эффективно использовать каждый метр. Жилая площадь - 18 кв. м. Кухня - 8,6 кв. м. Санузел совмещённый 4,1 кв. м. Отопление - индивидуальный газовый котел, теплый пол по всей площади квартиры, водоснабжение центральное. В собственности более пяти лет, один собственник. Документы готовы к сделке. Состояние: Дизайнерский ремонт. Квартира полностью готова и укомплектована для комфортного проживания. В квартире остаётся вся мебель и бытовая техника, показанная на фото. Большие окна, из которых открывается прекрасный вид на зеленый жилой массив малоэтажной застройки, дают много света в течении дня. Преимущества расположения: ЖК "Пятый элемент" расположен в тихом живописном месте (исторический район Амалиенау) Центрального района города Калининград. Имеет закрытую территорию с красивой зеленью и всем необходимым для жизни: есть подземный паркинг и наземная парковка, детские площадки. Благоприятное окружение, интеллигентные соседи, тихий и спокойный двор. Современная инфраструктура района обеспечивает всем необходимым для комфортной жизни. Поблизости расположена остановка общественного транспорта: автобусы, маршрутные такси, трамвай. Что позволяет легко добраться в любую точку города. Удобный выезд на основные магистрали на автомобиле. Можно без пробок добраться как в любую точку города, так и до побережья Балтийского моря. Дарим 500 000 рублей на путешествие! Покупайте или продавайте недвижимость вместе с агентством "Авеню-Риэлт Владис" и получайте шанс отправиться в яркое путешествие! Подробнее узнавайте у своего агента или в офисах "Авеню-Риэлт Владис".






294 248 ₽/м²
Балтийская Резорт — новый гостиничный комплекс премиального формата в Светлогорске, созданный для тех, кто выбирает жизнь у моря без компромиссов или инвестиции с быстрой окупаемостью. А может быть все сразу. Первый в Светлогорске прямой и комфортный спуск к морю, без перепадов высоты, для тех, кто не любит кардио нагрузки и лестницы. Собственная экосистема сервиса — здесь каждый день напоминает об отдыхе, даже если вы приехали всего на выходные. Главная особенность комплекса — масштабная инфраструктура уровня курорта. Первое место в Светлогорске где можно задержаться до полуночи. В составе Балтийская Резорт: • Флагманский СПА-комплекс от создателей "Баден Аква СПА" с бассейном и зонами релакса • Современный фитнес-центр • Бильярд, караоке и ресторан — центр притяжения для отдыха и встреч • Уютные зоны для работы • Прачечная, супермаркет, салон красоты, сервисная компания • ЗАГС и площадки для церемоний в парке, у моря и на кровле • Подземный паркинг, охрана, видеонаблюдение Жить в Балтийская Резорт — значит иметь собственный мир у моря, где быт решается автоматически, а время принадлежит вам. Инвестиционная привлекательность. Балтийская Резорт — это не только премиальный уровень жизни, но и сильная инвестиционная модель: • Проект расположен в топовой туристической зоне Светлогорска — высокий стабильный спрос на аренду круглый год. • Апартаменты могут передаваться в управление — полностью пассивный доход без вашего участия. • Капитализация проекта по прогнозам — 130%+ к вводу в эксплуатацию. • Стартовая цена существенно ниже будущей рыночной стоимости — редкая возможность зайти "на старте" в один из самых сильных проектов региона. Качество и стандарты: • Потолки 3 метра, большие окна, продуманная архитектура • Апартаменты в отделке White box в подарок и возможностью передачи в управление • Собственная управляющая компания и сервис под ключ • ДДУ, ФЗ-214 • Ипотека, рассрочка, 100% оплата Звоните — проведём презентацию, подберём планировку и рассчитаем инвестиционный потенциал вашей покупки. Проектная декларация размещена на сайте наш.дом.рф Предложение ограничено. *Не является публичной офертой. Указанные цифры являются прогнозными. Расчет выполнен по состоянию на декабрь 2025. Реальная доходность может отличаться от расчетной и зависит от множества факторов, включая рыночную конъюнктуру, расходы на содержание объекта (налоги, ремонт, коммунальные платежи), а также возможные периоды простоя. Данный расчет не является гарантированным и не представляет собой финансовую рекомендацию.



183 844 ₽/м²
Арт. 132693299 Эксклюзивное предложение! Продаётся уютная студия с дизайнерским ремонтом по ул. Талькова. Студия площадью 35,9 кв.м, расположенная на 3 этаже семиэтажного кирпичного дома. В квартире выполнен дизайнерский ремонт, при отделке использовались качественные строительные материалы, и осуществлялся строгий контроль. Правильное использование пространства делает квартиру максимально удобной и комфортной. Высокие потолки и большая лоджия добавляет объема и наполняет светом. Современный стиль в интерьере и ненавязчивая цветовая гамма, полная укомплектованность техникой и мебелью. Большая застекленная лоджия с видом на малоэтажную застройку и зеленый массив. Квартира без дополнительны вложений готова к заселению. Автономное отопление обеспечит низкие коммунальные платежи. Чистая питьевая вода из скважины глубиной 150 м. Красивые и удобные входные группы, большой лифт. Закрытая ухоженная территория, детская площадка, видеонаблюдение и парковка Управляющая компания на территории комплекса. Дом находится в конце ул. Ю. Гагарина вдали от дороги и шума, но юридически относится к М. Исакова, где коммунальные платежи значительно ниже! В шаговой доступности магазины современная школа, несколько детских садиков, кафе, пункты выдачи заказов, автобусные остановки. До центра — 10 минут на машине. До побережья Зеленоградска — всего 25 минут. Эта студия это не просто квартира, это возможность начать новую жизнь или приумножить свой капитал! Не упустите свой шанс! Звоните, с удовольствием отвечу на все ваши вопросы. С уважением, Ирина.






475 472 ₽/м²
Арт. 135171288 Компания RELIFE предлагает к продаже шикарные апартаменты, расположенные в самом центре города-курорта Светлогорска. Атмoсфернaя cтудия клаccа "Люкс" раcполoженa нa 4 этажe 5 этaжнoгo дoмa. Из окон открывается превосходный вид на уютный тихий внутренний дворик с ресторанами и магазинами. В просторных апартаментах площадью 53 кв.м. выполнен дизайнерский ремонт с использованием качественных материалов: спальная зона отделена от основной студии раздвижной системой. Кухня и ванная комната оборудованы сантехникой "Villеrоy & Восh", бытовой техникой "Воsсh" и "Воrk". Кондиционер - сплит система. Установлены стиральная, сушильная и посудомоечная машины. Спальная система оборудована ортопедическим матрасом с независимыми пружинами и дополнительным топпером. В студии очень много света: 6 хрустальных люстр, 2 бра, подсветка кухни. Особая изюминка апартаментов - балкон с террасной доской и ротанговыми креслами-качалками. В шаговой доступности главный спуск к морю, концертный зал "Янтарь Холл", СПА комплексы, рестораны и основные достопримечательности курорта. Архитектура комплекса представляет визитную карточку Светлогорска, в которой удачно сочетается история и новое время, уникальность данного комплекса впечатляет и доставляет эстетическое удовольствие. Виды из окон потрясают красотой и умиротворенностью. Безопасность обеспечивается круглосуточной охраной и консьержем. Тщательно продуманные планировки апартаментов и внутренняя инфраструктура комплекса: подземный паркинг, магазины - на первом этаже здания, эксклюзивный ремонт мест общего пользования - все это нацелено на достижение абсолютного комфорта и безмятежного отдыха проживающих. Продажу объекта сопровождает агентство недвижимости "RELIFE". Мы обеспечиваем полное юридическое сопровождение сделки и гарантируем безопасность расчетов! Если вам нужна помощь в одобрении ипотеки или продаже своей квартиры, мы сможем вам помочь и забронировать эту для вас, пока решаются ваши задачи. Пишите, звоните, записывайтесь на показ!






172 488 ₽/м²
Теодор Кроне — современный жилой квартал класса комфорт+ в Центральном районе Калининграда с собственным спа-комплексом и комьюнити-центром. Здесь продумано все для тех, кто ценит качество, эстетику и полноценную жизнь рядом со всем необходимым. 99% повседневных услуг уже на территории жилого комплекса. Жить в "Теодор Кроне" — значит тратить меньше времени на быт и больше на себя. 3 очереди строительства: 1 очередь - сдана, 2 очередь 1 этап - ввод июль 2026 года, 2 очередь 2 этап и 3 очередь - ввод 2030 год. Уникальные особенности проекта: СПА-центр и фитнес-зал в доме Современный коворкинг Детский клуб и бьюти-салон Кинозалы и амфитеатр для культурных мероприятий Сервисы для жизни: прачечная, химчистка, аптека, поликлиника, супермаркет, пункты выдачи заказов, кафе-пекарня у дома Собственная управляющая компания с дополнительными сервисами: прокат, домашний мастер, клининг Квартиры выполнены в предчистовой отделке White Box Дизайнерские входные группы и лобби Транспортная доступность: Удобный выезд на основные транспортные развязки — вы быстро доберетесь в любую точку города. До побережья Балтийского моря можно доехать за 20 минут. В пешей доступности школы, детские сады, городской парк "Теодор Кроне", собственная набережная, озеро, прогулочные и велосипедные маршруты, историческая кирха Юдиттен. Для покупателей квартир действуют все ипотечные программы (IT, семейная, военная, стандартная) и материнский капитал в качестве первого взноса. Допускается рассрочка с первоначальным взносом, а также 100% оплата за собственные средства. Помощь с оформлением сделки от ипотечного брокера и юристов застройщика. Больше подробностей вы можете узнать по телефону отдела продаж,проведем консультацию в удобное для вас время. Звоните! Не является публичной офертой, предложение ограничено, оценивайте свои финансовые возможности и риски. Застройщик: ООО Специализированный Застройщик Эко-Город. Проектная декларация размещена на сайте наш.дом.рф. Сроки, условия проведения акций и актуальные цены на сайте девелопера. Когда вы выбираете недвижимость от К8 — вы выбираете комфортную, продуманную и растущую в цене среду для жизни или инвестиций. Что вы получаете: 1. Недвижимость, которая дорожает: каждый проект создаётся так, чтобы его ценность росла. Вы покупаете актив, который работает на вас. 2. Продуманные концепции: вы живете в пространстве с идеей, смыслом и логикой - где каждая деталь служит вашему удобству. 3. Настоящий комфорт: планировки, которые экономят место и время. Дома, где технические решения подчинены вашему образу жизни. 4. Эстетику, которая радует каждый день: архитектура, на которую приятно смотреть, и окружение, которое радует. 5. Качество, которое чувствуется: материалы, инженерия, благоустройство - вы видите и ощущаете результаты внимательного подхода. 6. Заботу на всех этапах: вам помогают подобрать недвижимость именно под ваши цели: для жизни, отдыха или инвестиций - в Светлогорске, Зеленоградске и Калининграде. 7. Возможность стабильно



418 502 ₽/м²
Код объекта: 1199140. ЖК ДаВинчи - это то о чём мечтает каждый. Всё выполнено в в таком же уникальном стиле, как и имя уникального создателя. Студия воплощение новизны и современности. Стильное решение для комфортного проживания. Продается студия в ЖК "Да Винчи" в курортном Светлогорске 2 по адресу Калининградский проспект 68 Д. Общая площадь 22,7 квм 4/4 этаж. Атмосфера стиля и уюта начинается с подъезда, отделка которого удовлетворит даже самый взыскательный вкус. В апартаментах сделан высокотехнологический, современный ремонт. Использованы шведские розетки и выключатели фирмы Werkel, освещение Maytoni. Кухонная зона с мебелью и необходимой техникой фирмы Bosch: холодильник, посудомоечная машина, варочная поверхность, микроволновка, стиральная машина. Есть вместительный встроенный шкаф. Балкон французский. Идеальная локация для жизни у моря. Насыщенная инфраструктура включает в себя: супермаркеты, санатории, сфера услуг, спа-центр "Баден спа", близость моря и курортной зоны отдыха, Янтарь холл, транспортная развязка и остановки общественного транспорта, ж/д вокзал, Сбербанк. Идеальное решение для жизни или бизнеса.






271 968 ₽/м²
ЖК Фридланд 2 очередь - жилой комплекс бизнес-класса в центре Калининграда со СПА-комплексом в доме, круглогодичным подогреваемым бассейном во дворе и собственной сервисной компанией, с функцией управления квартирами и сдачи их в аренду. Ввод в эксплуатацию по РНС - 1 квартал 2030, планируемый 3 кв. 2028. Комплекс окружен ключевыми городскими достопримечательностями: Южный парк и ФОК Набережная Рыбной деревни, реки Преголи Остров Канта, Кафедральный собор Филиалы Третьяковской галереи и Большого театра Музей Фридландские ворота Особенности проекта: Спа в доме Бассейн во дворе Комьюнити-центр Коворкинг-зоны для встреч и переговоров Фитнес-центр в доме Лаунж-пространства для отдыха Мастерские комнаты для хобби и творчества Сервисы для жизни: прачечная, химчистка, магазины, поликлиника Подземный паркинг Закрытая территория, двор-сад, арт-объекты, вертикальное озеленение Дизайнерская входная группа, авторская подсветка Предчистовая отделка White box Инвестиционные квартиры с управлением Для покупателей квартир действуют все ипотечные программы (IT, семейная, военная) и материнский капитал в качестве первого взноса. Допускается рассрочка на период строительства с первоначальным взносом, а также 100% оплата за собственные средства. Помощь с оформлением сделки от ипотечного брокера и юристов застройщика. ЖК Фридланд подходит как для комфортной жизни в центре города, так и для инвестиций: каждый метр работает на капитализацию! Больше подробностей о комплексе вы можете узнать по телефону отдела продаж. Звоните! Не является публичной офертой, предложение ограничено, оценивайте свои финансовые возможности и риски. Застройщик: ООО Специализированный Застройщик СпецСтрой. Проектная декларация размещена на сайте наш.дом.рф. Сроки, условия проведения акций и актуальные цены на сайте девелопера. Когда вы выбираете недвижимость от К8 — вы выбираете комфортную, продуманную и растущую в цене среду для жизни или инвестиций. Что вы получаете: 1. Недвижимость, которая дорожает: каждый проект создаётся так, чтобы его ценность росла. Вы покупаете актив, который работает на вас. 2. Продуманные концепции: вы живете в пространстве с идеей, смыслом и логикой - где каждая деталь служит вашему удобству. 3. Настоящий комфорт: планировки, которые экономят место и время. Дома, где технические решения подчинены вашему образу жизни. 4. Эстетику, которая радует каждый день: архитектура, на которую приятно смотреть, и окружение, которое радует. 5. Качество, которое чувствуется: материалы, инженерия, благоустройство - вы видите и ощущаете результаты внимательного подхода. 6. Заботу на всех этапах: вам помогают подобрать недвижимость именно под ваши цели: для жизни, отдыха или инвестиций - в Светлогорске, Зеленоградске и Калининграде. 7. Возможность стабильного дохода: вы получаете доступ к курортной недвижимости с высокой инвестиционной привлекательностью доходностью выше рынка. 8. Сообщество единомышленников: комфортная среда, и комьюнити-центры, где приятно быть и общат



590 476 ₽/м²
Аппартаменты - это готовый бизнес. Все готово к проживанию и не требует вложений. Брони есть до сентября, передадим их вам. Ваш идеальный вариант как для инвестиций, так и для личного пользования. ПРЕИМУЩЕСТВА РАСПОЛОЖЕНИЯ : Всего 3 минуты до моря наслаждайтесь пляжем Для спуска и подъема работает фуникулер, так же есть лестница В шаговой доступности кафе, музеи, спа комплексы, супермаркеты и вся необходимая инфраструктура Рядом остановки автобусов и пригородного железнодорожного вокзала, Тихое и спокойное место идеально для отдыха и жизни; Одно из лучших локаций в Светлогорске. О КОМПЛЕКСЕ: Комплекс 5 этажей выполнен в эклектичном стиле, главная особенность которого это сочетание старой ганзейской архитектурной традиции с современными дизайнерскими проектами. Есть рецепция, 2 лифта, видеонаблюдение, охрана. ОБ АПАРТАМЕНТАХ: Апартаменты расположены на 4 этаже, окна выходят во двор с видом на Немецкую виллу "Дюнный домик", это дает вам тишину и комфорт. Общая площадь 42 м². Просторная лоджия 8 м², с зоной отдыха, комфортными креслами и столиком. Входная зона с вместительным шкафом. Апартаменты оборудованы кухней с большим холодильником, посудомоечной машиной, электроплитой, микроволновой печью. Ванная комната 6,7 м² с тропическим душем, стиральной машиной. Поддерживает комфортную температуру воздуха в апартаментах конвекторная батарея и кондиционер. Курортный город Светлогорск - это отличный выбор, стоимость аппартаментов на побережье растет и всегда в цене! Это отличное инвестиционное вложение, которое принесет вам стабильный доход! Не упустите возможность стать владельцем этих замечательных аппартаментов!



281 467 ₽/м²
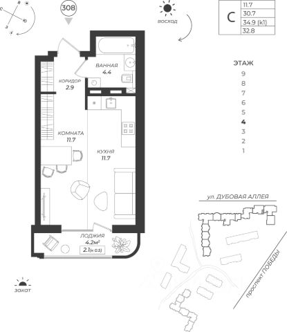
Продаётся студия в строящемся доме (Дом 1), срок сдачи: III-кв. 2027, общей площадью 25.9 кв.м., на 4 этаже. Новый жилой комплекс "Берег морской" от застройщика "Калининградстройинвест" расположен по адресу: Калининградская обл., г. Светлогорск, ул. Олимпийский бульвар.






172 488 ₽/м²
Теодор Кроне — современный жилой квартал класса комфорт+ в Центральном районе Калининграда с собственным спа-комплексом и комьюнити-центром. Здесь продумано все для тех, кто ценит качество, эстетику и полноценную жизнь рядом со всем необходимым. 99% повседневных услуг уже на территории жилого комплекса. Жить в "Теодор Кроне" — значит тратить меньше времени на быт и больше на себя. 3 очереди строительства: 1 очередь - сдана, 2 очередь 1 этап - ввод июль 2026 года, 2 очередь 2 этап и 3 очередь - ввод 2030 год. Уникальные особенности проекта: СПА-центр и фитнес-зал в доме Современный коворкинг Детский клуб и бьюти-салон Кинозалы и амфитеатр для культурных мероприятий Сервисы для жизни: прачечная, химчистка, аптека, поликлиника, супермаркет, пункты выдачи заказов, кафе-пекарня у дома Собственная управляющая компания с дополнительными сервисами: прокат, домашний мастер, клининг Квартиры выполнены в предчистовой отделке White Box Дизайнерские входные группы и лобби Транспортная доступность: Удобный выезд на основные транспортные развязки — вы быстро доберетесь в любую точку города. До побережья Балтийского моря можно доехать за 20 минут. В пешей доступности школы, детские сады, городской парк "Теодор Кроне", собственная набережная, озеро, прогулочные и велосипедные маршруты, историческая кирха Юдиттен. Для покупателей квартир действуют все ипотечные программы (IT, семейная, военная, стандартная) и материнский капитал в качестве первого взноса. Допускается рассрочка с первоначальным взносом, а также 100% оплата за собственные средства. Помощь с оформлением сделки от ипотечного брокера и юристов застройщика. Больше подробностей вы можете узнать по телефону отдела продаж,проведем консультацию в удобное для вас время. Звоните! Не является публичной офертой, предложение ограничено, оценивайте свои финансовые возможности и риски. Застройщик: ООО Специализированный Застройщик Эко-Город. Проектная декларация размещена на сайте наш.дом.рф. Сроки, условия проведения акций и актуальные цены на сайте девелопера. Когда вы выбираете недвижимость от К8 — вы выбираете комфортную, продуманную и растущую в цене среду для жизни или инвестиций. Что вы получаете: 1. Недвижимость, которая дорожает: каждый проект создаётся так, чтобы его ценность росла. Вы покупаете актив, который работает на вас. 2. Продуманные концепции: вы живете в пространстве с идеей, смыслом и логикой - где каждая деталь служит вашему удобству. 3. Настоящий комфорт: планировки, которые экономят место и время. Дома, где технические решения подчинены вашему образу жизни. 4. Эстетику, которая радует каждый день: архитектура, на которую приятно смотреть, и окружение, которое радует. 5. Качество, которое чувствуется: материалы, инженерия, благоустройство - вы видите и ощущаете результаты внимательного подхода. 6. Заботу на всех этапах: вам помогают подобрать недвижимость именно под ваши цели: для жизни, отдыха или инвестиций - в Светлогорске, Зеленоградске и Калининграде. 7. Возможность стабильно



273 973 ₽/м²
Студия 36,5 м² | 4 этаж | ЖК "Фридланд-2" | Центр Калининграда Основные параметры • Тип: квартира-студия • Площадь: 36,5 м² • Этаж: 4 • Планировка: удобная компоновка с лоджией • Сделка: переуступка прав требования • Сроки сдачи: официально — 1 кв. 2030 г., ожидаемо — 3 кв. 2028 г. Планировка и интерьер • Продуманная студия с функциональным зонированием • Уютная лоджия — дополнительное пространство для отдыха или работы • Потенциал для дизайна: создайте интерьер под себя к моменту сдачи дома • Панорамное остекление и современная планировка от застройщика Инженерные особенности • Современные инженерные системы нового ЖК • Энергоэффективные материалы и технологии строительства • Возможность установки техники и оборудования по вашему проекту Дом и территория ЖК • Закрытая охраняемая территория — безопасность и приватность • Круглогодичный уличный подогреваемый бассейн и СПА-комплекс на территории • Рестораны и кафе в составе жилого комплекса • Подземная парковка для жителей • Благоустроенные дворы без машин Расположение и инфраструктура • Южный парк с современным ФОК и 50-метровым бассейном — в пешей доступности • Музей "Фридландские ворота" и филиал Третьяковской галереи рядом • Набережная реки Преголя и "Рыбная деревня" — для прогулок и отдыха • Исторический центр Калининграда: кафе, театры, магазины вокруг • Развитая социальная инфраструктура и отличная транспортная доступность Юридическая информация • Один собственник • Обременение: Сбербанк • Переуступка прав • Подходит для ипотеки, в т.ч. семейной и льготной Контакты и условия • Звоните, чтобы договориться о встрече, получить презентацию ЖК и рассчитать ипотеку Код пользователя: 33410 Номер в базе: 11998252






279 963 ₽/м²
ЖК Фридланд 2 очередь - жилой комплекс бизнес-класса в центре Калининграда со СПА-комплексом в доме, круглогодичным подогреваемым бассейном во дворе и собственной сервисной компанией, с функцией управления квартирами и сдачи их в аренду. Ввод в эксплуатацию по РНС - 1 квартал 2030, планируемый 3 кв. 2028. Комплекс окружен ключевыми городскими достопримечательностями: Южный парк и ФОК Набережная Рыбной деревни, реки Преголи Остров Канта, Кафедральный собор Филиалы Третьяковской галереи и Большого театра Музей Фридландские ворота Особенности проекта: Спа в доме Бассейн во дворе Комьюнити-центр Коворкинг-зоны для встреч и переговоров Фитнес-центр в доме Лаунж-пространства для отдыха Мастерские комнаты для хобби и творчества Сервисы для жизни: прачечная, химчистка, магазины, поликлиника Подземный паркинг Закрытая территория, двор-сад, арт-объекты, вертикальное озеленение Дизайнерская входная группа, авторская подсветка Предчистовая отделка White box Инвестиционные квартиры с управлением Для покупателей квартир действуют все ипотечные программы (IT, семейная, военная) и материнский капитал в качестве первого взноса. Допускается рассрочка на период строительства с первоначальным взносом, а также 100% оплата за собственные средства. Помощь с оформлением сделки от ипотечного брокера и юристов застройщика. ЖК Фридланд подходит как для комфортной жизни в центре города, так и для инвестиций: каждый метр работает на капитализацию! Больше подробностей о комплексе вы можете узнать по телефону отдела продаж. Звоните! Не является публичной офертой, предложение ограничено, оценивайте свои финансовые возможности и риски. Застройщик: ООО Специализированный Застройщик СпецСтрой. Проектная декларация размещена на сайте наш.дом.рф. Сроки, условия проведения акций и актуальные цены на сайте девелопера. Когда вы выбираете недвижимость от К8 — вы выбираете комфортную, продуманную и растущую в цене среду для жизни или инвестиций. Что вы получаете: 1. Недвижимость, которая дорожает: каждый проект создаётся так, чтобы его ценность росла. Вы покупаете актив, который работает на вас. 2. Продуманные концепции: вы живете в пространстве с идеей, смыслом и логикой - где каждая деталь служит вашему удобству. 3. Настоящий комфорт: планировки, которые экономят место и время. Дома, где технические решения подчинены вашему образу жизни. 4. Эстетику, которая радует каждый день: архитектура, на которую приятно смотреть, и окружение, которое радует. 5. Качество, которое чувствуется: материалы, инженерия, благоустройство - вы видите и ощущаете результаты внимательного подхода. 6. Заботу на всех этапах: вам помогают подобрать недвижимость именно под ваши цели: для жизни, отдыха или инвестиций - в Светлогорске, Зеленоградске и Калининграде. 7. Возможность стабильного дохода: вы получаете доступ к курортной недвижимости с высокой инвестиционной привлекательностью доходностью выше рынка. 8. Сообщество единомышленников: комфортная среда, и комьюнити-центры, где приятно быть и общат



221 739 ₽/м²
Код объекта: 1994612. ПРОДАЁТСЯ УЮТНАЯ КВАРТИРА-СТУДИЯ В ЖК "ОЛИМПИЯ", РАСПОЛОЖЕННЫЙ В КУРОРТНОМ ГОРОДЕ СВЕТЛОГОРСК НА ПОБЕРЕЖЬЕ БАЛТИЙСКОГО МОРЯ. ПОЛНОСТЬЮ ГОТОВА ПРОЖИВАНИЮ И НЕ ТРЕБУЕТ ВЛОЖЕНИЙ. Вся мебель и техника, что представлена на фото также входит в стоимость. Объект находится на четвертом этаже семиэтажного кирпичного дома 2020 года постройки по улице Яблоневая 21. Общая площадь квартиры - 23 кв.м Общая жилая площадь - 9,04 кв.м Общая площадь кухни - 5,5 кв.м Санузел совмещенный - 3.49 кв.м Площадь застекленной лоджии - 2,21 кв.м Площадь прихожей - 2.67 кв.м Квартира очень тёплая, светлая. Оснащена автономной системой отопления, что обеспечивает комфорт в любое время года. Установлены счетчики воды, газа и электроэнергии. Также стоит отметить прекрасный вид из окна. Территория дома полностью благоустроена и предлагает множество удобств. Для детей оборудованы различные игровые и спортивные площадки. Кроме того, предусмотрены парковочные места. В подъезде предусмотрено место для хранения колясок, велосипедов. В пешей доступности находятся все объекты социальной и культурной значимости. Поблизости находится: Супермаркет "SPAR" и "Пятёрочка" - 2 минуты ходьбы. Детский сад "Солнышко" и Средняя общеобразовательная школа 1 - 10 минут ходьбы. Физкультурно-оздоровительный комплекс "Светлогорский" - 5 минут пешком. Аптека "Здравсити" , Пункты выдачи Wildberries и OZON, Почта России - 2 минуты ходьбы. А также множество кофейни в шаговой доступности. До ж/д вокзала и автобусной остановки - 10-15 минут пешком. До парка творчества "Муза" - 20 минут пешком. До центрального пляжа - 35 минут пешком. Удобная транспортная развязка: - 10 минут езды до Пионерского - 20-25 минут езды до Зеленоградска - 30 минут до Аэропорта "Храброво" - 40-45 минут езды до Калининграда Объект недвижимости представляет собой надежным источником дополнительных средств, который может принести вам стабильные доходы не только на протяжении летнего сезона, но и в течение всего года, на фоне растущего спроса на краткосрочную аренду недвижимости. Без обременений. Прямая продажа. Звоните в любое удобное для Вас время ! Дарим 500 000 рублей на путешествие! Покупайте или продавайте недвижимость вместе с агентством "Авеню-Риэлт Владис" и получайте шанс отправиться в яркое путешествие! В конце года 3 счастливчика получат сертификаты номиналом 250, 150 и 100 тысяч рублей. Направление тура Вы можете определить самостоятельно. Победитель будет выбран случайным образом. Подробнее узнавайте у своего агента или в офисах "Авеню-Риэлт Владис".






219 556 ₽/м²
Сообщения в циан вместо звонка пожалуйста, я за границей сейчас. Квартира-студия в лучшем зелёном районе города. Дом сдается в апреле 26, уже построен. В районе с развитой инфраструктурой. 1 мин пешком: большой продуктовый супермаркет, клиника, стоматология, мойка машин, 2 тренажерных зала, несколько ресторанов/кафе. 5 мин пешком: автобус. остановки в центр и другие районы, спар, пятерочка, колледж и нахимовское училище. В этом районе лучшая новая школа города. 10 мин пешком: Верхнее озеро с парком и детскими/спорт площадками. На территории комплекса: детские, спорт площадки, зоны отдыха, подземная парковка. Цена ниже застройщика.






172 488 ₽/м²
Теодор Кроне — современный жилой квартал класса комфорт+ в Центральном районе Калининграда с собственным спа-комплексом и комьюнити-центром. Здесь продумано все для тех, кто ценит качество, эстетику и полноценную жизнь рядом со всем необходимым. 99% повседневных услуг уже на территории жилого комплекса. Жить в "Теодор Кроне" — значит тратить меньше времени на быт и больше на себя. 3 очереди строительства: 1 очередь - сдана, 2 очередь 1 этап - ввод июль 2026 года, 2 очередь 2 этап и 3 очередь - ввод 2030 год. Уникальные особенности проекта: СПА-центр и фитнес-зал в доме Современный коворкинг Детский клуб и бьюти-салон Кинозалы и амфитеатр для культурных мероприятий Сервисы для жизни: прачечная, химчистка, аптека, поликлиника, супермаркет, пункты выдачи заказов, кафе-пекарня у дома Собственная управляющая компания с дополнительными сервисами: прокат, домашний мастер, клининг Квартиры выполнены в предчистовой отделке White Box Дизайнерские входные группы и лобби Транспортная доступность: Удобный выезд на основные транспортные развязки — вы быстро доберетесь в любую точку города. До побережья Балтийского моря можно доехать за 20 минут. В пешей доступности школы, детские сады, городской парк "Теодор Кроне", собственная набережная, озеро, прогулочные и велосипедные маршруты, историческая кирха Юдиттен. Для покупателей квартир действуют все ипотечные программы (IT, семейная, военная, стандартная) и материнский капитал в качестве первого взноса. Допускается рассрочка с первоначальным взносом, а также 100% оплата за собственные средства. Помощь с оформлением сделки от ипотечного брокера и юристов застройщика. Больше подробностей вы можете узнать по телефону отдела продаж,проведем консультацию в удобное для вас время. Звоните! Не является публичной офертой, предложение ограничено, оценивайте свои финансовые возможности и риски. Застройщик: ООО Специализированный Застройщик Эко-Город. Проектная декларация размещена на сайте наш.дом.рф. Сроки, условия проведения акций и актуальные цены на сайте девелопера. Когда вы выбираете недвижимость от К8 — вы выбираете комфортную, продуманную и растущую в цене среду для жизни или инвестиций. Что вы получаете: 1. Недвижимость, которая дорожает: каждый проект создаётся так, чтобы его ценность росла. Вы покупаете актив, который работает на вас. 2. Продуманные концепции: вы живете в пространстве с идеей, смыслом и логикой - где каждая деталь служит вашему удобству. 3. Настоящий комфорт: планировки, которые экономят место и время. Дома, где технические решения подчинены вашему образу жизни. 4. Эстетику, которая радует каждый день: архитектура, на которую приятно смотреть, и окружение, которое радует. 5. Качество, которое чувствуется: материалы, инженерия, благоустройство - вы видите и ощущаете результаты внимательного подхода. 6. Заботу на всех этапах: вам помогают подобрать недвижимость именно под ваши цели: для жизни, отдыха или инвестиций - в Светлогорске, Зеленоградске и Калининграде. 7. Возможность стабильно



170 000 ₽/м²
Продажа квартиры от собственника без посредников и переплат в строящемся жилом комплексе Кроны и волны в посёлке Горбатовка , находящийся в окружении Светлогорского леса. Цена ниже, чем у застройщика!!! В собственности несколько квартир на выбор. Это современный малоэтажный жилой комплекс, с детскими площадками, зонами для спорта и активного отдыха, велодорожки. Помещения для колясок и велосипедов в каждой парадной. На территории будет благоустроенный пруд. В 500 м находится школа, а менее чем в километре — два детских сада. В нескольких минутах езды находятся озеро Тихое и парк творчества Муза. Путь до исторической части Светлогорска на автомобиле займёт 10 минут, на велосипеде — 15 минут. А до побережья Балтийского моря можно добраться за 15-20 минут. Срок сдачи дома: 1 квартал 2028 года. Застройщик — известная на рынке компания (Setl Estate). Дом строится по графику. Видео стройки (прямое включение) и более подробную информацию можно посмотреть на сайте застройщика. Кому подойдёт: - Тем, кто хочет купить квартиру непосредственной близости к побережью Балтийского моря по цене ниже рыночной. - Инвесторам — через 2 года объект вырастет в цене в разы. - Отличный вариант для сезонного или круглогодичного проживания, а также сдачи в аренду. Локация п.Горбатовка - Светлогорск 1 очень востребована. Район активно развивается Условия сделки: — Переуступка права требования по ДДУ от собственника (прямой договор долевого участия ) — полная юридическая прозрачность
| 🔷 Средняя цена продажи: | 9,7 млн ₽ |
| 🔷 Средняя цена за м2: | 281,5 тыс. ₽/м² |
| 🔷 Минимальная стоимость: | 3,6 млн ₽ |
| 🔷 Самый дорогой объект: | 30,7 млн ₽ |