


132 000 ₽/м²
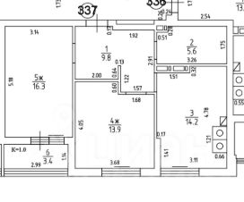
Просторная 3-комн. квартира с предчистовой отделкой в ЖК "Сиреневый бульвар" на 3 этаже. Общая площадь: 73.6 кв.м., жилая: 35 кв.м., площадь просторной кухни-столовой: 16.3 кв.м. Комнаты изолированные, все окна выходят на одну сторону. В квартире один балкон, один совмещенный и один раздельный санузел. Высота потолков 2.7 м. Дом монолитный, многоподъездный, высотой 4 этажа. Квартира находится в 8-й секции в корпусе 2.1. На этаже 3 квартиры. В подъезде 1 грузовой лифт. Окончание строительства - 3 квартал 2027 года. Оформление сделки по договору долевого участия. Жилой комплекс "Сиреневый бульвар" это 5 клубных 4-х этажных домов на 16 квартир и 9 домов с несколькими секциями. Вместе эти дома формируют собственное закрытое пространство с дворовыми территориями, спортивными и детскими площадками, местами отдыха и коммерческими помещениями. Дизайнерские входные группы и обилие зелени, удобные зоны отдыха всё устроено с особым вниманием. Жителей комплекса ждут просторные квартиры комфорт-класса с огромными террасами, мастер-спальнями, гардеробными и кухнями-гостиными. В каждом доме предусмотрены места для хранения велосипедов, кладовые помещения на цокольных этажах. "Сиреневый Бульвар" позволит своим жителям получить все преимущества городского комфорта и максимум плюсов от жизни на природе. Для жителей и гостей предусмотрены парковочные места, вся территория оборудована круглосуточной системой видеонаблюдения. В шаговой доступности находятся детский сад, начальная школа и продовольственные магазины. Жилой Комплекс "Сиреневый Бульвар" - уникальный проект, расположенный в Калининграде - балтийской жемчужине, в городе с богатым прошлым, комфортным настоящим и радужным будущим. Именно Калининград место встречи России и Европы. Жилой Комплекс "Сиреневый Бульвар" находится в географическом центре города. Ленинградский район (бывшие Ротенштейн, Марауненхоф, Лип, Девау, Палве и Куммерау) это северная часть Калининграда, где в довоенные годы располагался Старый город. Жилой комплекс находится рядом с Верхним озером, Нижним прудом и ещё 12 городскими водоемами. Территория всего проекта занимает 21,9 гектаров и находится между улицами Арсенальная, Пехотная и 4-ой Большой окружной. Аккредитация в банках: ПАО "Газпромбанк", "Сбербанк России", ПАО Банк "ВТБ", ПАО "Промсвязьбанк", ПАО Банк "ФК Открытие". Купить квартиру первичка в районе Ленинградский в городе Калининград.
















































































































































