


137 700 ₽/м²
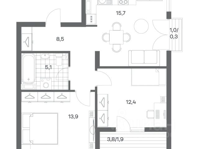
Просторная 3-комн. квартира с предчистовой отделкой в ЖК "Сиреневый бульвар" на 2 этаже. Общая площадь: 79.5 кв.м., жилая: 46.1 кв.м., площадь просторной кухни-столовой: 12.3 кв.м. Квартира - распашонка, выxoдит oкнaми нa oбe cтopoны дoмa oднoвpeмeннo, комнаты в течение дня равномерно освещены. В квартире одна лоджия, один совмещенный и один раздельный санузел. Высота потолков 2.7 м. Дом монолитный, многоподъездный, высотой 4 этажа. Квартира находится в 3-й секции в корпусе 5.1. На этаже 4 квартиры. В подъезде 1 грузовой лифт. На сегодняшний день строительство завершено, дом сдан в 4 квартале 2025 года. Оформление сделки по договору купли-продажи. Жилой комплекс "Сиреневый бульвар" это 5 клубных 4-х этажных домов на 16 квартир и 9 домов с несколькими секциями. Вместе эти дома формируют собственное закрытое пространство с дворовыми территориями, спортивными и детскими площадками, местами отдыха и коммерческими помещениями. Дизайнерские входные группы и обилие зелени, удобные зоны отдыха всё устроено с особым вниманием. Жителей комплекса ждут просторные квартиры комфорт-класса с огромными террасами, мастер-спальнями, гардеробными и кухнями-гостиными. В каждом доме предусмотрены места для хранения велосипедов, кладовые помещения на цокольных этажах. "Сиреневый Бульвар" позволит своим жителям получить все преимущества городского комфорта и максимум плюсов от жизни на природе. Для жителей и гостей предусмотрены парковочные места, вся территория оборудована круглосуточной системой видеонаблюдения. В шаговой доступности находятся детский сад, начальная школа и продовольственные магазины. Жилой Комплекс "Сиреневый Бульвар" - уникальный проект, расположенный в Калининграде - балтийской жемчужине, в городе с богатым прошлым, комфортным настоящим и радужным будущим. Именно Калининград место встречи России и Европы. Жилой Комплекс "Сиреневый Бульвар" находится в географическом центре города. Ленинградский район (бывшие Ротенштейн, Марауненхоф, Лип, Девау, Палве и Куммерау) это северная часть Калининграда, где в довоенные годы располагался Старый город. Жилой комплекс находится рядом с Верхним озером, Нижним прудом и ещё 12 городскими водоемами. Территория всего проекта занимает 21,9 гектаров и находится между улицами Арсенальная, Пехотная и 4-ой Большой окружной. Аккредитация в банках: ПАО "Газпромбанк", ПАО Банк "ВТБ", "Сбербанк России", ПАО "Промсвязьбанк", ПАО Банк "ФК Открытие". Квартира в ипотеку в новостройке от застройщиков в Калининграде.




































































































































































