132 407 ₽/м²
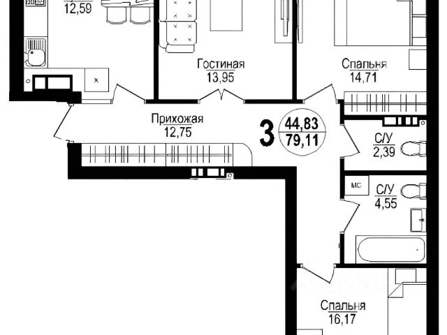
Продаётся 3-комнатная квартира в сданном доме (Кипарисовая, 1 (Дом 20)), срок сдачи: II-кв. 2021, общей площадью 81 кв.м., на 7 этаже. Самый амбициозный строительный проект компании "Мегаполис" - жилой комплекс "Восток", возводимый на земельном участке площадью 60 гектаров. Комплекс возведен по принципу "город в городе". Это микрорайон с собственной инфраструктурой, где все необходимое находится в шаговой доступности: детский сад, рестораны, магазины, спорт-клубы, отделение "Почта России", а в конце 2018 года будет готова крупнейшая в области школа. Сейчас из района "Восток" за 15 минут можно добраться до центра города, выехать на Окружную за пять минут, попасть на морское побережье - за 25 минут. После проведения матчей Чемпионата мира по футболу планируется соединить Московский проспект с улицей Гагарина.Архитектурный ансамбль жилого района выполнен в едином интернациональном стиле. Прямые и чистые линии, правильные пропорции определяют общий стиль комплекса. Основной мотив - простота и элегантность геометрических фигур. Все дома выполнены в мягкой цветовой гамме, не вызывающей эмоционального напряжения. В каждой квартире ЖК "Восток" автономное отопление. Газовый котел в новостройке экономит до 50% коммунальных платежей.Качество котла определяет срок службы и безопасность жителей. В квартирах "Востока" установлены итальянские котлы Fondital. Эта марка 48 лет изготавливает двухконтурные котлы и славится своим качеством. Вторая особенность квартир в "Востоке" - большая площадь и эргономичная планировка. В стандартных однокомнатных квартирах комната служит как спальней, так и гостиной. Приходится довольствоваться "неполноценным" диваном. В квартирах жилого комплекса из комнаты легко можно сделать настоящую спальню. А большую кухню использовать как место встречи с друзьями и родителями. Ищите для себя что-то особенное? В квартирах "Востока" это не проблема: 12 видов планировок позволят подобрать квартиру на любой вкус и требования. Отделка "белые стены":- стены подготовлены к финишной отделке,- армированная стяжка пола,- Надежная металлическая входная дверь и металлопластиковые окна,- Двухконтурный газовый котел фирмы Fondital В подъезде швейцарский скоростной лифт Schindler, фактурная штукатурка, плитка.Во дворе очень большая детская площадка, подземный паркинг.В 100 метрах от дома детский сад, школа, магазины, фитнес-клуб, остановка (до центра города - 15 минут). Возможны разные варианты оплаты.- Ипотека со всеми банками (бесплатно поможем оформить и подать документы),- МАТЕРИНСКИЙ КАПИТАЛ,- ВОЕННАЯ ИПОТЕКА,- Все виды жилищных сертификатов Покупка квартиры от застройщика это:- Гарантия отсутствия переплаты посредникам,- Комплексное сопровождение сделки ипотечным специалистом и юридической службой компании.- Регистрация сделки в строгом соответствии с Законодательством РФ- Бонусная программа магазинов группы компаний "Мегаполис" Одним из главных достоинств, несомненно, остается чистый воздух и отсутствие шума и суеты всего в 15 минутах ез 3-комнатная квартира 3-комнатных квартир в Восток в Калининграде.






















































































