РУСЬ 1
КОМПЛЕКС СДАН!
"Русь" - элитный гостиничный комплекс, созданный для ценителей комфорта и самовыражения. Каждая деталь призвана доставить резидентам максимальное удовольствие и комфорт с уровнем обслуживания 5-звездочного отеля на побережье Балтийского моря.
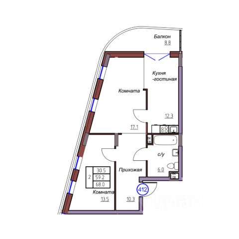
Новый гостиничный комплекс расположен на территории бывшей гостиницы "Русь" в курортном городе Светлогорск. В дань памяти предшественницы часть комплекса отведена под пятизвездочный отель, остальную территорию занимают апартаменты.
"Русь" настоящий рай для гедонистов. Здесь Вас ждет уникальное сочетание домашнего комфорта с качественным пятизвездочным сервисом:
Хилинг-отель
Дизайнерские интерьеры
Круглосуточная служба ресепшн
Собственный СПА
Инфинити-бассейн
Поликлиника и оздоровление
Бювет, грязелечебница
Конференц-зал
Подземный паркинг
Рестораны с летними террасами и видом на море
Апартаменты в отделке White Box
Для покупателей апартаментов действуют все ипотечные программы, рассрочка от застройщика или 100% оплата за собственные средства. Помощь с оформлением сделки от ипотечного брокера и юристов застройщика.
Звоните, готовы ответить на все ваши вопросы в удобное для Вас время!
Не является публичной офертой, предложение ограничено, оценивайте свои финансовые возможности и риски. ООО "К8". Сроки, условия проведения акций и актуальные цены на сайте девелопера.
Застройщик: ООО "СЗ ИНЭКО ГДС".
Когда вы выбираете недвижимость от К8 — вы выбираете комфортную, продуманную и растущую в цене среду для жизни или инвестиций.
Что вы получаете:
1. Недвижимость, которая дорожает: каждый проект создаётся так, чтобы его ценность росла. Вы покупаете актив, который работает на вас.
2. Продуманные концепции: вы живете в пространстве с идеей, смыслом и логикой - где каждая деталь служит вашему удобству.
3. Настоящий комфорт: планировки, которые экономят место и время. Дома, где технические решения подчинены вашему образу жизни.
4. Эстетику, которая радует каждый день: архитектура, на которую приятно смотреть, и окружение, которое радует.
5. Качество, которое чувствуется: материалы, инженерия, благоустройство - вы видите и ощущаете результаты внимательного подхода.
6. Заботу на всех этапах: вам помогают подобрать недвижимость именно под ваши цели: для жизни, отдыха или инвестиций - в Светлогорске, Зеленоградске и Калининграде.
7. Возможность стабильного дохода: вы получаете доступ к курортной недвижимости с высокой инвестиционной привлекательностью доходностью выше рынка.
8. Сообщество единомышленников: комфортная среда, и комьюнити-центры, где приятно быть и общаться.
Почему покупатели доверяют К8:
18 лет стабильной работы в недвижимости - вы выбираете девелопера с опытом.
Более 16 реализованных проектов - вы видите реальные результаты, а не обещания.
450 000 м² построенной недвижимости - вы покупаете в известных и надёжных комплексах.
Проекты компании входят в ТОП-100 архитектурных проектов России - вы получаете качественную и современную среду.
Более 5000 клиентов уже сделали выбор в п