Мы используем куки-файлы. Соглашение об использовании
Общая площадь148 м²
Участок2 сот.
Этажей в доме2
Год постройки2015
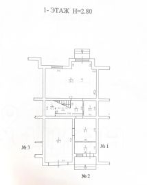
Вашему вниманию предлагается уютный дом для комфортного проживания и отдыха - 148 м2 в Большом Исаково. Центральные коммуникации, хорошие подъездные пути. Автономное отопление, 15 кВт электричество, центральное водоснабжение, ЛОС. Общая площадь дома:148 кв.м., что идеально подходит как для большой семьи, так и для тех, кто ценит простор и свободу. Дом двухэтажный, с продуманной планировкой. На первом этаже расположены гардеробная, кухня-гостиная, санузел и выход в гараж. Второй этаж включает спальни, детские комнаты и дополнительный санузел. 3 этаж- чердачное пространство, где можно хранить вещи. Земельный участок 2 сотки, территория огорожена забором. Система теплого пола на 1 этаже и в санузле не 2 этаже. Близость к городу позволяет быстро добраться до всех необходимых объектов инфраструктуры( в пешей доступности одна из лучших школ области- Школа Будущего, остановка общественного транспорта, супермаркеты, детский сад) Полная стоимость в договоре( без каких либо занижений) Участок ухоженный, все сделано для вашего комфорта и удобства. Этот дом станет идеальным местом для жизни и воплощения ваших мечт об идеальном доме. Если вы хотите наслаждаться жизнью на природе, при этом имея под рукой все необходимое для комфорта, то этот вариант точно заслуживает внимания! Для более подробной информации и организации просмотра Звоните, отвечу на все интересующие вопросы и согласуем просмотр Без комиссий для покупателя!
Позвоните автору
Вам ответят на все вопросы

О доме

Площадь

148 м²

Количество этажей

2

Год постройки

2015

Об участке

Площадь

2 сот.

Спросите умного помощника
Получите экспертное мнение о жилье

Расположение

Подпишитесь на объявления в этой локации
Мы сообщим, как только поблизости появится что‑нибудь новенькое
Ипотечный калькулятор
  • Базовая
  • Семейная
  • ИТ-ипотека
  • 20%
  • 30%
  • 40%
  • 50%
лет
  • 10 лет
  • 20 лет
  • 30 лет
Загружаем предложения от застройщика и банков
Хотите продать недвижимость?Разместите объявление на ЦианРазместить
16 000 000 ₽
Цена за метр
108 108 ₽/м²
Агентство недвижимости
Документы проверены