Мы используем куки-файлы. Соглашение об использовании
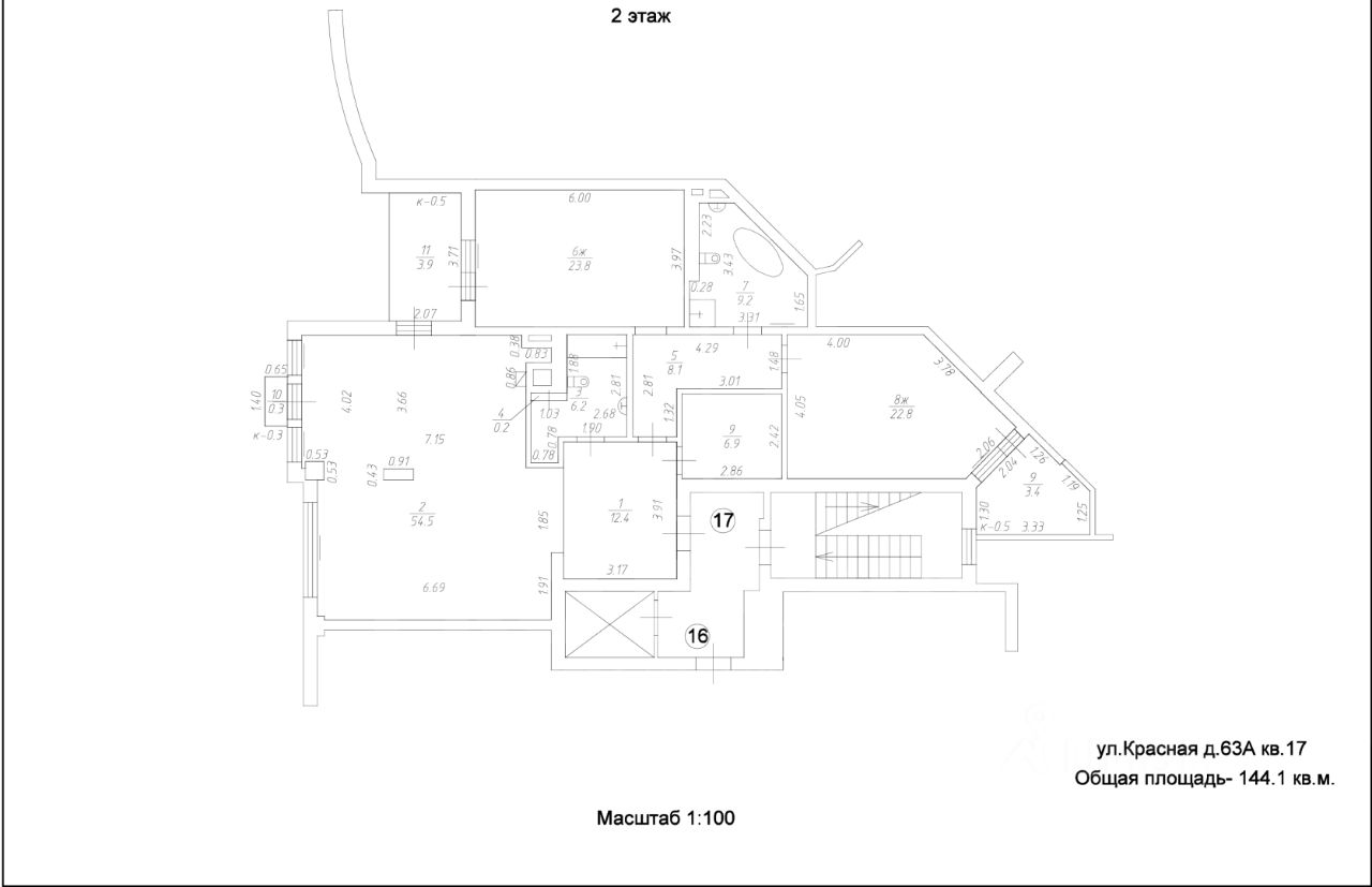
Общая площадь144,1 м²
Площадь кухни54,5 м²
Этаж2 из 9
Арт. 135126571 2-комнатная квартира 144,4 м² в сердце Амалиенау. Изысканность вне времени Амалиенау — историческая жемчужина. Эта квартира — дань уважения классической архитектуре и современному комфорту. Редкий объект для ценителей настоящего качества. Жилой комплекс располагается в самом престижном районе Калининграда, рядом с немецким парком, теннисными кортами, современным фитнес центром и известной в городе гимназией 1. Жилой комплекс включает в себя: внутренний двор свободный от автомобилей для занятий спортом установлены - теннисный стол, оборудована площадка для игр в волейбол, баскетбол, футбол. для самых маленьких оборудована - детская площадка с игровым комплексом, трасса с горками для катания на скейтбордах и роликах, а зимой на санках. Ключевые характеристики: Площадь: 144,1 м² — простор, сопоставимый с полноценным домом. Кухня-гостиная 54.5 кв.м Сальня 23,8 кв.м Спальня 22,8 кв.м Санузел 6,2 кв.м Ванная комната 9,2 кв.м Французский балкон 0,3 кв.м Терасса 3,9 кв.м Терасса 3,4 кв.м. 3-метровые потолки — воздух и свет. Окна на разные стороны — квартира наполнена солнцем с утра до вечера. Французский балкон + 2 терассы — уютные зоны для кофе и релакса. Квартира полностью укомплектована техникой и мебелью европейских производителей: Италия, Испания, Германия. Детали, вызывающие восхищение (дизайнерский ремонт): Натуральный камень: подоконники, плинтусы, ступени — мрамор. Столешница и зона кухни — гранит. Отделка стен: итальянская матовая краска (благородных оттенков), в кухне и ванной — дорогой натуральный шпон. Паркет Tarkett. Латунь: изящные вставки в плитке, сантехника и декор — в тренде "luxury metal". Инженерная мощь: скрытая система кондиционирования, тёплый пол под плиткой, немецкая встроенная техника. Санузел уровня спа-отеля: Ванна премиальной французской марки — массивная каменная чаша (эффект спа). Полы с подогревом, натуральный шпон на стенах. Умный дом и сервис: Сигнализация и охрана. Консьерж-сервис — безопасность и приём корреспонденции. Выключатели Vercari (итальянский дизайн, тактильное удовольствие). Идеально для: семьи, ценящей простор и историю, либо для представительской резиденции
Позвоните автору
Вам ответят на все вопросы

О квартире

Тип жилья

Вторичка

Общая площадь

144,1 м²

Площадь кухни

54,5 м²

Высота потолков

3 м

Санузел

1 раздельный

Балкон/лоджия

1 балкон

Вид из окон

На улицу и двор

Ремонт

Дизайнерский

О доме

Год постройки

2008

Количество лифтов

1 пассажирский

Тип дома

Кирпичный

Тип перекрытий

Железобетонные

Подъезды

5

Отопление

Котел/Квартирное отопление

Аварийность

Нет

Газоснабжение

Центральное

Спросите умного помощника
Получите экспертное мнение о жилье

Расположение

Ипотечный калькулятор
  • Базовая
  • Семейная
  • ИТ-ипотека
  • 20%
  • 30%
  • 40%
  • 50%
лет
  • 10 лет
  • 20 лет
  • 30 лет
Загружаем предложения от застройщика и банков
Помощь риелтора
Проверенный риелтор поможет купить или продать квартиру
45 300 000 ₽
Цена за метр
314 365 ₽/м²
Условия сделки
свободная продажа
Ипотека
возможна
Агентство недвижимости
Документы проверены