Мы используем куки-файлы. Соглашение об использовании
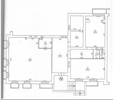
Помещение свободного назначения, 161,4 м²
Площадь161,4 м²
Этаж1 из 3
Отчёт о привлекательности объектаУзнайте, насколько помещение и район подходят для вашего бизнеса
Что входит в отчёт
  • Охват населения
  • Пешеходный трафик
  • Автомобильный трафик
  • Средний бюджет семьи по району
  • Арендные ставки рядом
  • Точки притяжения
  • Конкуренты в радиусе 1 км
  • Рекомендации по выбору места для бизнеса
Помещение в отличном состоянии, с качественным ремонтом. Отопление автономное , помещение оснащено пожарной и охранной сигнализацией, камерами видео наблюдения. Кому подойдёт: Это универсальное пространство подходит для разнообразных видов бизнеса благодаря свободной планировке и удобному расположению • Предпринимателям и офисам: Идеально для консалтинговых фирм, агентств недвижимости, IТ-компаний или юридических бюро, шоурумы ... • Медицинским специалистам: Подходит для частной клиники, стоматологии, косметологического или массажного кабинета. • Салонам и сервисам: Отлично для салона красоты, парикмахерской, фитнес-центра или ателье
lock

Войдите или зарегистрируйтесь
для просмотра информации

Просматривайте условия сделки и всю информацию об объекте
Сохраняйте фильтры в поиске и не вводите заново
Доступ к избранному с любого устройства
Неограниченное добавление в избранное
Позвоните автору
Вам ответят на все вопросы
Остались вопросы по объявлению?
Позвоните владельцу объявления и уточните необходимую информацию.
  • Инфраструктура
  • Похожие рядом
  • Тип зданияОфисно-жилой комплекс
  • Общая площадь161,4 м²
Естественная вентиляция
Автономное отопление
Помощь надёжных риелторов
Риелтор партнёр Циан поможет купить или продать любую недвижимость
СобственникID 138451634
  • Предоставил паспорт
10 168 200 ₽
135 924 $
115 703
Цена за метр
63 000 ₽
Налог
УСН
СобственникID 138451634
  • Предоставил паспорт