Мы используем куки-файлы. Соглашение об использовании

Продается производство, 14 593 м²

Площадь14 593 м²
Этаж1 из 1
Выс. потолков3.5 м.
Отчёт о привлекательности объектаУзнайте, насколько помещение и район подходят для вашего бизнеса
Что входит в отчёт
  • Охват населения
  • Пешеходный трафик
  • Автомобильный трафик
  • Средний бюджет семьи по району
  • Арендные ставки рядом
  • Точки притяжения
  • Конкуренты в радиусе 1 км
  • Рекомендации по выбору места для бизнеса
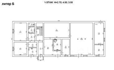
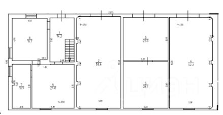
Предлагается к продаже производственная база на земельном участке площадью 14 593 кв.м. по адресу: Калининградская область, гор. Гусев, ул. Сержанта Утегенова, д. 51 (кадастровый номер 39:04:010158:4) на территории расположены: 1. Нежилое здание (Склад) с кадастровым номером 39:04:010158:12, общей площадью 511,9 кв. м.; 2. Нежилое здание (Склад СТО животноводческих ферм) с кадастровым номером 39:04:010158:16, общей площадью 1178,5 кв. м.; 3. Нежилое здание (Ремонтная мастерская) с кадастровым номером 39:04:010158:1 общей площадью 262,2 кв. м Все постройки зарегистрированы, каждому зданию присвоен кадастровый номер. Удачное местоположение. Хорошие подъездные пути. Электроэнергия - 285 кВт. Имеется городское водоснабжение и канализация. Подведен газ. Идеально подходит для сельскохозяйственного, производственного, логистического и туристического бизнеса. Хорошая база для Винзавода (винодельни). Возможно использования под социальный объект: Реабилитационный центр, Пансионат для пожилых людей. В регионе действуют льготы особой экономической зоны (ОЭЗ), пониженные ставки ЕСХН, субсидии на производство и гранты на развитие фермерства. Резиденты ОЭЗ получают значительные налоговые послабления, а в Гусеве применяются местные земельные льготы. Звоните, чтобы узнать подробности и договориться о просмотре.
lock

Войдите или зарегистрируйтесь
для просмотра информации

Просматривайте условия сделки и всю информацию об объекте
Сохраняйте фильтры в поиске и не вводите заново
Доступ к избранному с любого устройства
Неограниченное добавление в избранное
Позвоните автору
Вам ответят на все вопросы
Остались вопросы по объявлению?
Позвоните владельцу объявления и уточните необходимую информацию.
  • Инфраструктура
  • Похожие рядом
  • Общая площадь14 593 м²
Естественная вентиляция
Помощь надёжных риелторов
Риелтор партнёр Циан поможет купить или продать любую недвижимость
СобственникID 118901826
  • Предоставил паспорт
18 000 000 ₽
240 981 $
205 497
Цена за метр
1 234 ₽
Налог
УСН
СобственникID 118901826
  • Предоставил паспорт