Мы используем куки-файлы. Соглашение об использовании
Помещение свободного назначения, 80 м²

Продается помещение свободного назначения, 80 м²

Площадь80 м²
Этаж1 из 7
Отчёт о привлекательности объектаУзнайте, насколько помещение и район подходят для вашего бизнеса
Что входит в отчёт
  • Охват населения
  • Пешеходный трафик
  • Автомобильный трафик
  • Средний бюджет семьи по району
  • Арендные ставки рядом
  • Точки притяжения
  • Конкуренты в радиусе 1 км
  • Рекомендации по выбору места для бизнеса
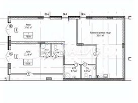
Код объекта: 1167654. Предлагаем к продаже помещение в Центральном районе на 1-м этаже с газовым автономным отоплением. Преимущества объекта: • Арендатор: В настоящее время есть арендатор Озон. • Отдельный вход: С панорамным остеклением. • Расположение: Хорошо развитый активный район. • Отопление: Автономное газовое. • Санузлы: Два санузла. • Высота потолка: 3.5 м. Дополнительные преимущества: • Парковка: Рядом есть открытая просторная гостевая парковка и подземный паркинг. • Инфраструктура: Развитая инфраструктура вокруг комплекса обеспечивает великолепную синергию. Звоните или пишите 24/7 Лариса
lock

Войдите или зарегистрируйтесь
для просмотра информации

Просматривайте условия сделки и всю информацию об объекте
Сохраняйте фильтры в поиске и не вводите заново
Доступ к избранному с любого устройства
Неограниченное добавление в избранное
Позвоните автору
Вам ответят на все вопросы
Остались вопросы по объявлению?
Позвоните владельцу объявления и уточните необходимую информацию.
  • Инфраструктура
  • Похожие рядом
  • Площадь участка0 сот.
  • Общая площадь80 м²
Автономное отопление
Помощь надёжных риелторов
Риелтор партнёр Циан поможет купить или продать любую недвижимость
9 900 000 ₽
133 251 $
111 803
Цена за метр
123 750 ₽
Налог
НДС не включен
Агентство недвижимости
Документы проверены
На Циан
8 лет
Объектов в работе
более 2000
5,0・3