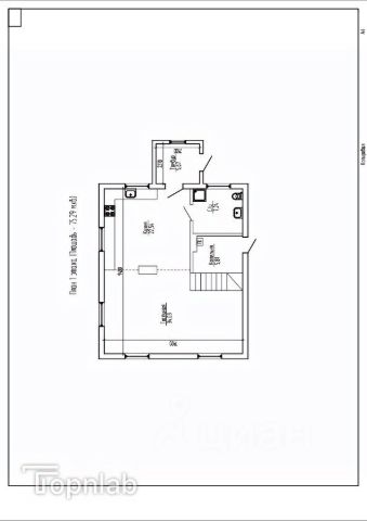
Код объекта: 1389433. Предлагаем вашему вниманию уникальный дом в Калининграде. Продается 1/2 доля (первый и цокольный этажи). Общая площадь продаваемой части дома 168,85 кв. м. Дом построен в 1994 году и обладает всеми необходимыми коммуникациями: централизованным водоснабжением, электричеством, газом и канализацией. Крыша покрыта качественной керамической черепицей, что гарантирует долгий срок службы. Дом расположен на участке в 6 соток с удобным асфальтированным подъездом. Высота потолков составляет 3 метра, что создаёт атмосферу пространства и уюта. Внутри вас ждут две светлые комнаты площадью 38,6 и 16,8 кв. м, а также кухня размером 11,9 кв. м, что делает его хорошим вариантом для комфортного проживания. Сделан косметический ремонт. Все функционирует. Фото соответствуют реальности. Расположение дома обеспечивает хорошую транспортную доступность, а наличие всех необходимых удобств в шаговой близости делает его идеальным для жизни. Не упустите возможность стать владельцем этого уникального объекта! Позвоните нам прямо сейчас, чтобы узнать детали или записаться на просмотр. Мы гарантируем безопасную сделку и юридическую поддержку нашим клиентам. Дарим 300 000 рублей на путешествие! Покупайте или продавайте недвижимость вместе с агентством "Авеню-Риэлт Владис" и получайте шанс отправиться в путешествие Вашей мечты! Направление путевки Вы можете определить самостоятельно. Победитель будет выбран случайным образом в конце декабря. Подробнее узнавайте у своего агента или в офисах "Авеню-Риэлт Владис". Продается загородная недвижимость на улице Менделеева в городе Калининград.















































































