189 381 ₽/м²
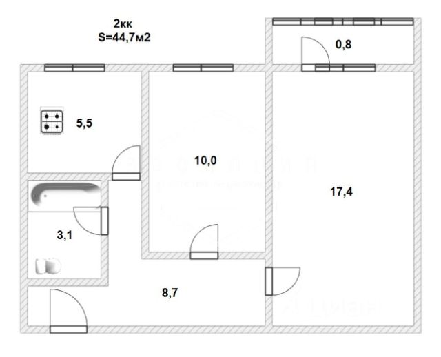
Код объекта: 1865505. Продается уютная двухкомнатная квартира с дизайнерским ремонтом в монолитно-кирпичном доме, построенном в 2019 году. Просторная кухня оборудована современной немецкой техникой, включая посудомоечную машину и встроенную духовку. Комнаты изолированные, что обеспечивает комфорт и приватность. В квартире выполнен качественный ремонт с использованием дорогих материалов. Из окон открывается вид на город, тихий двор с закрытой территорией и детской площадкой. Лоджия застеклена, что позволяет использовать ее как дополнительное пространство. Дом оснащен грузовым лифтом, а также имеется парковка за шлагбаумом. Автономное отопление добавляет удобства в быту. Санузел совмещенный, оформлен в современном стиле с качественной плиткой - керамогранит. Развитая инфраструктура: магазины, супермаркеты, рынок, торговый центр с кинотеатром, остановки общественного транспорта, поликлиника, школы и детские сады - все в шаговой доступности. Квартира готова к встрече с новыми хозяевами!






















































