С мебелью
7 800 000 ₽
306 243 ₽/м²
Продаётся уютная квартира- студия в курортном Светлогорске - в самом живописном месте города!
Идеально подходит для жизни и отдыха, также арендного бизнеса.
Дом 2019 года постройки от застройщика Setl Group, расположен улице Майский проезд, в реликтовом сосновом лесу - парке с велодорожками и спортплощадками, рядом озеро Тихое.
Выполнен качественный современный ремонт, окна над лесом на юго-восток наполняют квартиру естественным светом с утра и весь день. Реликтовый сосновый бор, внесенный в список ЮНЕСКО, круглый год насыщает квартиру сосновым ароматом и является гарантом незастройки вида на него из квартиры. Уникальная возможность находиться в сосновом бору не выходя из квартиры, наслаждаться пением птиц и чистотой воздуха. В многолюдный туристический сезон расположение квартиры является гарантом тишины и покоя.
Остается все, как на фото, вся брендовая мебель и техника. Интернет и ТВ в наличии. Состояние новой, в квартире жил два раза по две недели, не сдавалась.
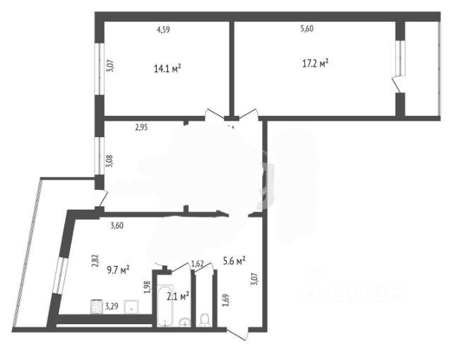
Общая площадь 25,5 м. с современной планировкой и выходом на застекленную лоджию с прекрасным, живописным видом на сосновый бор с уровня 8 этажа. Лоджия заменена на теплую, герметичную фирмы Quelta.
Автономное отопление двух-контурного котла Ariston, автоматика. Кроме того, по всей территории квартиры теплые электро полы, на лоджии, в комнате, на кухне, в ванной и коридоре, также автоматически поддерживают заданные параметры. Низкие коммунальные платежи.
Благоустроенная придомовая территория с детской и спортивной площадками, места для хранения велосипедов и колясок.
Инфраструктура: в шаговой доступности школа 1, детские сады "Солнышко" и "Березка", остановка общественного транспорта, торговый центр, театр эстрады "Янтарь Холл", променад на побережье Балтийского моря и пляж.
Прямая продажа без обременений, собственник один.


















































