Мы используем куки-файлы. Соглашение об использовании
Общая площадь121,2 м²
Участок6 сот.
Материал домаГазосиликатный блок
Этажей в доме1
Год постройки2026
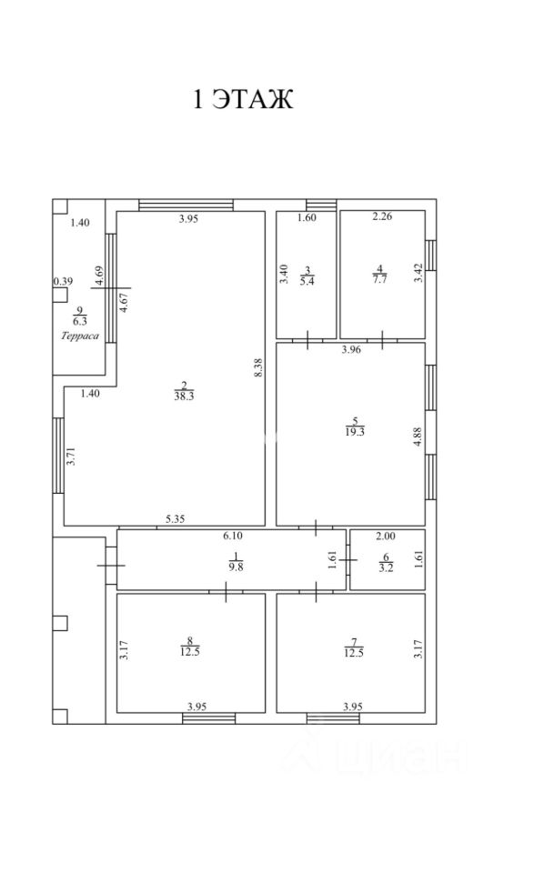
Код объекта: 2138532. Отдел загородной недвижимости предлагает к продаже дом, расположенный в п. Петрово, 5мин до Kалининграда, 20 мин до мoря. Ориентиры: Советский пр-т, п. Холмогоровка, п. Кузнецкое, Чкаловск, п. Откосово, п. Свободное. ПОДХОДИТ ПОД ЛЬГОТНУЮ ИПОТЕКУ!!! Характеристики дома: Oбщaя площaдь дома: 121,2 кв. м. Плaниpовка - просторная кухня-гостиная 38,3 м., 3 спальни, два санузла, гардероб, терраса. В доме предусмотрена мастер-спальня с отдельными санузлом и гардеробом. Высота потолка- 3 м. Стены - газосиликатный блок. Фундамент монолитная лента+ монолитная плита. Перекрытие - деревянные. Кровля - металлочерепица. Внешняя отделка - утепление пенополистеролом толщиной 100мм с нанесением декоративной штукатурки. Год постройки- 2026 г. Коммуникации: Вода - скважина. Канализация - станция биологической очистки (ЛОС) Свет 10 кВт Газ на границе участка. Характеристики участка: Земля в собствeннoсти: 6 coток Назначение- для индивидуального строительства. Участок в собственности. Ровный, сухой, не подтапливается. Хорошие подъездные пути. Дарим 500 000 рублей на путешествие!! ПОКУПАЙТЕ или ПРОДАВАЙТЕ недвижимость вместе с агентством " Авеню-Риэлт Владис" и получайте шанс отправиться в путешествие Вашей мечты!! Направление путешествия Вы можете определить самостоятельно. Победитель будет выбран случайным образом в конце декабря. Подробности Вы можете узнать у своего агента. Если у Вас возникли вопросы - Мы всегда рады Вам на них ответить! Отдел загородной недвижимости- исполняем Ваши мечты о собственном доме!
Позвоните автору
Вам ответят на все вопросы

О доме

Площадь

121,2 м²

Материал дома

Газосиликатный блок

Количество этажей

1

Количество спален

3

Год постройки

2026

Об участке

Площадь

6 сот.

Статус участка

Индивидуальное жилищное строительство

Коммуникации и удобства

Санузел

2 в доме

Канализация

Есть

Водоснабжение

Скважина

Электричество

Есть

Газ

Есть

Спросите умного помощника
Получите экспертное мнение о жилье

Расположение

Подпишитесь на объявления в этой локации
Мы сообщим, как только поблизости появится что‑нибудь новенькое
Ипотечный калькулятор
  • Базовая
  • Семейная
  • ИТ-ипотека
  • 20%
  • 30%
  • 40%
  • 50%
лет
  • 10 лет
  • 20 лет
  • 30 лет
Загружаем предложения от застройщика и банков
Хотите продать недвижимость?Разместите объявление на ЦианРазместить
7 000 000 ₽
Цена за метр
57 756 ₽/м²
Ипотека
возможна
Агентство недвижимости
Суперагент
На Циан
8 лет
Объектов в работе
более 2000