Мы используем куки-файлы. Соглашение об использовании

Продается 1-комн. квартира, 57,2 м²

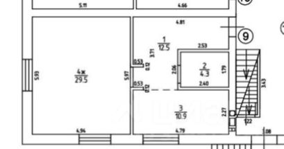
Общая площадь57,2 м²
Жилая площадь35 м²
Площадь кухни16 м²
Этаж2 из 4
Год постройки2024
уютная квартира в зеленом районе Светлогорска НЕ АГЕНТ. СОБСТВЕННИК Продаётся просторная квартира большой комнатой на первом этаже кирпичного дома, построенного в 2025 году. Дом расположен в тихом районе с закрытой территорией и подземной парковкой. Из окон открывается вид на деревья, что обеспечивает спокойствие и уединение. 10 минут пешком до моря Также в шаговой доступности магазин (Кант, Спар) и ресторан Дом оборудован газоснабжением (котел в каждой квартире), что позволяет экономить на коммунальных услугах. Теплые полы. На территории двора обустроена детская площадка, где дети могут безопасно играть. По всем вопросам пишите или звоните Возможем обмен (с доплатой) Возможна рассрочка
Позвоните автору
Вам ответят на все вопросы

О квартире

Тип жилья

Вторичка

Общая площадь

57,2 м²

Жилая площадь

35 м²

Площадь кухни

16 м²

Высота потолков

2,95 м

Санузел

1 совмещенный

Балкон/лоджия

1 лоджия, 1 балкон

Вид из окон

На улицу и двор

Ремонт

Дизайнерский

Перепланировка

Не было

О доме

Год постройки

2024

Тип перекрытий

Нет информации

Придомовая территория

Двор без машин

Парковка

Наземная

Отопление

Нет информации

Аварийность

Нет

Юридические особенности

Несовершеннолетние собственники

Нет

Материнский капитал при покупке

Не использовался

Доступная среда

Вход в подъезд без порога
Есть пандус
Входная дверь не указана
Двери в ванную и санузел не указаны
Двери в комнаты и кухню не указаны
Спросите умного помощника
Получите экспертное мнение о жилье

Расположение

Ипотечный калькулятор
  • Базовая
  • Семейная
  • ИТ-ипотека
  • 20%
  • 30%
  • 40%
  • 50%
лет
  • 10 лет
  • 20 лет
  • 30 лет
Загружаем предложения от застройщика и банков
Помощь риелтора
Проверенный риелтор поможет купить или продать квартиру
СобственникID 52478582
    9 500 000 ₽
    Цена за метр
    166 084 ₽/м²
    Условия сделки
    свободная продажа
    Ипотека
    возможна
    СобственникID 52478582