Мы используем куки-файлы. Соглашение об использовании

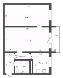
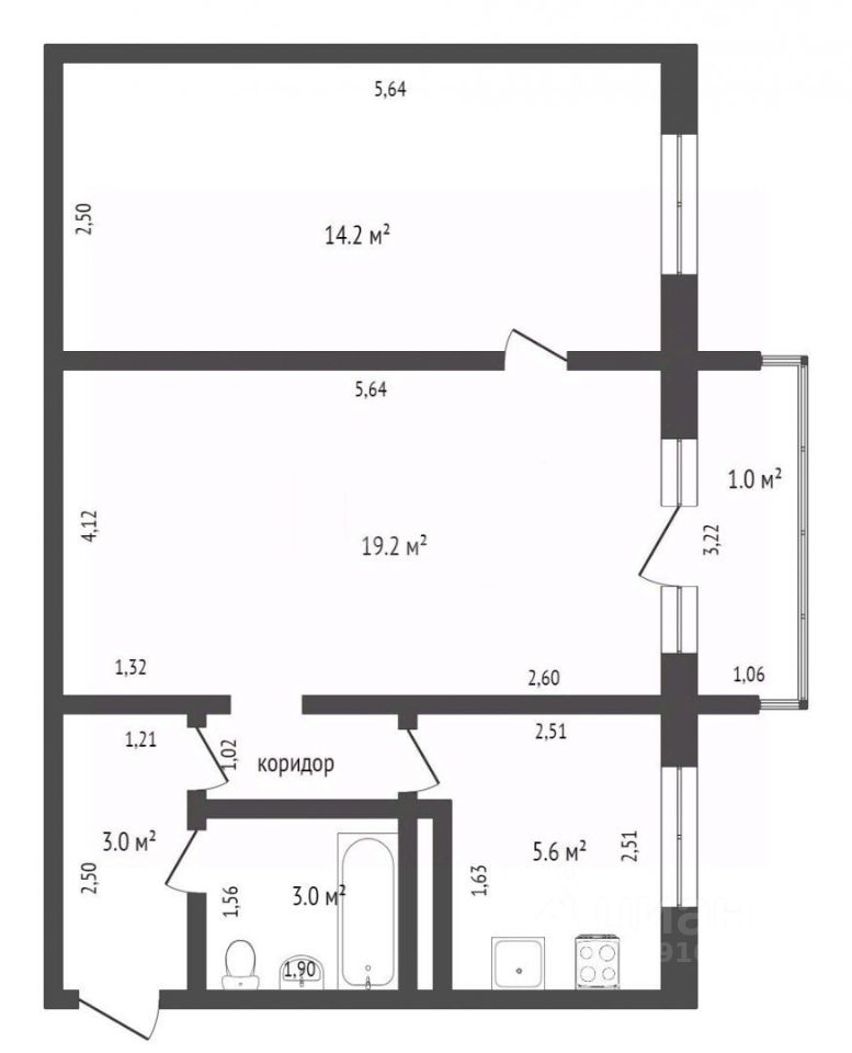
Продается 2-комн. квартира, 44 м²

Общая площадь44 м²
Площадь кухни6 м²
Этаж2 из 5
Год постройки1975
Продается двухкомнатная квартира в пятиэтажноом панельном доме.Общая площадь-44кв.м.отопление центральное,установлены счетчики на горячее и холодное водоснабжение.В квартире недавно сосвежили ремонт. Вы можете внести в дизайн собственные коррективы и сделать эту квартиру максимально удобной для себя. Возле дома всегда есть свободные парковочные места В самом микрорайоне очень хорошо развита инфраструктура:школы,детские сады,фитнес-центр, различные магазины, Захаровский рынок и отличная транспортная развязка. Код пользователя: 157063 Номер в базе: 7365419
Позвоните автору
Вам ответят на все вопросы

О квартире

Тип жилья

Вторичка

Общая площадь

44 м²

Площадь кухни

6 м²

Высота потолков

2,5 м

Санузел

1 раздельный

Балкон/лоджия

1 балкон

Вид из окон

Во двор

Ремонт

Косметический

О доме

Тип дома

Панельный

Парковка

Наземная

Спросите умного помощника
Получите экспертное мнение о жилье

Расположение

Ипотечный калькулятор
  • Базовая
  • Семейная
  • ИТ-ипотека
  • 20%
  • 30%
  • 40%
  • 50%
лет
  • 10 лет
  • 20 лет
  • 30 лет
Загружаем предложения от застройщика и банков
Помощь риелтора
Проверенный риелтор поможет купить или продать квартиру
5 700 000 ₽
Цена за метр
129 545 ₽/м²
Условия сделки
свободная продажа
Агентство недвижимости
Суперагент
На Циан
7 лет
Объектов в работе
более 1000