Мы используем куки-файлы. Соглашение об использовании
Только на Циан

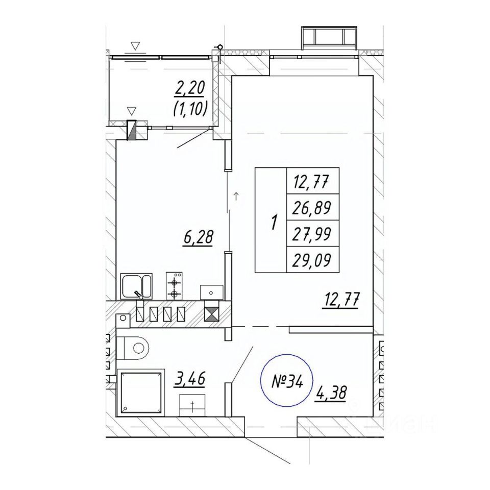
Продается 1-комн. квартира, 27,99 м²

  • Бесплатно найдём новостройку под ваш бюджет
Общая площадь27,99 м²
Этаж4 из 4
Год сдачи2029
ДомНе сдан
ОтделкаЧерновая
КВАРТИРА У МОРЯ В ЗЕЛЕНОГРАДСКЕ 10 минут пешком до пляжа! Семейная ипотека 5% Рассрочка от застройщика 0% Подарок: умный дом от Сбера Продается квартира комфорт-класса в новом малоэтажном ЖК "Яркий" у Балтийского моря, г. Зеленоградск. Прямая продажа от застройщика. Тихая локация в развивающемся районе - вдали от городского шума и рядом с побережьем. 1-комн. квартира 4 этаж О ЖИЛОМ КОМПЛЕКСЕ 4-этажные дома с лифтами Удобные планировки Отделка "серый ключ" - коммуникации спрятаны, стены оштукатурены, полы залиты Металлические двери с тепло- и шумоизоляцией Автономное газовое отопление Детские площадки, зоны отдыха, озеленение Доступная среда Парковочные места для жителей и гостей комплекса Закрытая территория со шлагбаумами ЛОКАЦИЯ ЖК расположен в посёлке Малиновка - это: тишина чистый, комфортный пляж 10 минут до Куршской косы на автомобиле 8 минут до центра Зеленоградска 35 минут до Калининграда магазины, кафе, транспорт - рядом О ЗАСТРОЙЩИКЕ "СТРОЙИНВЕСТИЦИЯ" Строим с 2014 года в Калининграде и области. Сопровождаем клиента на всех этапах - от подбора квартиры до регистрации сделки. Работаем только с эскроу-счетами - ваши средства защищены! Возможна дистанционная покупка и онлайн-сделка. ЖК "Яркий" - комфортная жизнь у моря и выгодная инвестиция. Подходит для проживания, отдыха и сдачи в аренду. Позвоните или напишите нам - расскажем о планировках, ипотеке и актуальных предложениях, запишем на просмотр или онлайн-показ.

О квартире

Тип жилья

Новостройка

Общая площадь

27,99 м²

Высота потолков

2,7 м

Отделка

Черновая

О доме

Количество лифтов

1 грузовой

Тип дома

Кирпичный

Понравилась квартира — узнайте о ней больше

Застройщик ответит на все вопросы

Варианты отделки в ЖК

  • Черновая

3D-тур

Посмотрите 3D-тур, чтобы оценить объект
Похоже на то, что вы ищете?

Акции в ЖК «Яркий»

Узнайте про персональные условия и дополнительные скидки при покупке квартиры у застройщика

Военная ипотека

Умный дом от Сбера в подарок

Ипотечный калькулятор
  • Базовая
  • Семейная
  • ИТ-ипотека
  • 20%
  • 30%
  • 40%
  • 50%
лет
  • 10 лет
  • 20 лет
  • 30 лет
Загружаем предложения от застройщика и банков

Расположение

Корпус проверен наш.дом.рф
Обновлено 14 апреля 2026
  • Нет в реестре проблемных объектов
  • Застройщик не банкрот
  • Есть эскроу счёт
  • Актуальные фото стройки

Ещё квартиры в жилом комплексе

352 квартиры в продаже · Сдача в 2026—2029
ЗастройщикСтройИнвестиция
Год основания: 2005
Строится: 38 домов в 2 ЖК
4 618 350 ₽
Цена за метр
165 000 ₽/м²
Условия сделки
свободная продажа
Бесплатно найдём новостройкуИ поможем на сделке