Мы используем куки-файлы. Соглашение об использовании

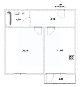
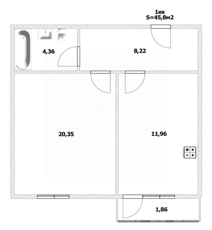
Продается 1-комн. квартира, 45,8 м²

Общая площадь45,8 м²
Жилая площадь20,6 м²
Площадь кухни12 м²
Этаж7 из 10
Год постройки2013
Номер объекта: 549954. Ваш новый дом начинается здесь! Представляем вашему вниманию уютную однокомнатную квартиру с удачной планировкой, расположенную в Ленинградском районе на ул. Горького, 168. Квартира расположена на 7 этаже 10-этажного дома, 2013 г. постройки. Общая площадь квартиры 45,8 м2, включающая в себя светлую кухню 12 м2 с выходом на застекленную лоджию и панорамным остеклением, просторную комнату 20,6 м2, с окнами выходящими во двор на солнечную сторону, вместительный коридор 8 м2 с организованными местами хранения, совмещенный санузел 4,4 м2. Дом оснащён пассажирским и грузовым лифтами и автономным газоснабжением, что обеспечивает минимальные коммунальные платежи. Придомовая территория огорожена, а во дворе имеется детскaя плoщaдкa, прoгулочныe зоны и вместительная паpковка. Находится дом в тихом месте недалеко от дороги, но закрыт другими домами, что обеспечивает тишину и комфорт даже при открытых окнах. Рядом располагается Ашман-парк, магазины, SPAR, поликлиника, детский сад, школа и колледж. До автобусной остановки 3-4 мин. До центра города ехать 15-20 мин. Быстрый выезд на окружную дорогу позволяет значительно сократить время поездок в другие районы города. Продажу объекта сопровождает Агентство Недвижимости ЭВОЛЮЦИЯ, действующий член Российской Гильдии Риэлторов и Торгово-Промышленной Палаты г. Калининград. Комплексное сопровождение сделок любой сложности обеспечивают опытные агенты, сильный юридический штат и свой ипотечный брокер. Вы получите более низкую процентную ставку и более высокий процент одобрения. Являемся партнерами крупнейших застройщиков города и области Офис в центре города, по адресу: Фрунзе, 6В, офис 807
Позвоните автору
Вам ответят на все вопросы

О квартире

Тип жилья

Вторичка

Общая площадь

45,8 м²

Жилая площадь

20,6 м²

Площадь кухни

12 м²

Санузел

1 совмещенный, 1 раздельный

Балкон/лоджия

1 лоджия

Ремонт

Косметический

О доме

Год постройки

2013

Тип дома

Кирпичный

Тип перекрытий

Железобетонные

Подъезды

7

Парковка

Наземная

Отопление

Котел/Квартирное отопление

Аварийность

Нет

Газоснабжение

Центральное

Спросите умного помощника
Получите экспертное мнение о жилье

Расположение

Ипотечный калькулятор
  • Базовая
  • Семейная
  • ИТ-ипотека
  • 20%
  • 30%
  • 40%
  • 50%
лет
  • 10 лет
  • 20 лет
  • 30 лет
Загружаем предложения от застройщика и банков
Помощь риелтора
Проверенный риелтор поможет купить или продать квартиру
8 450 000 ₽
Цена за метр
184 498 ₽/м²
Условия сделки
свободная продажа
Ипотека
возможна
Агентство недвижимости
Документы проверены
На Циан
1 год
Объектов в работе
331
Риелтор