Мы используем куки-файлы. Соглашение об использовании
Общая площадь50 м²
Жилая площадь14 м²
Площадь кухни18 м²
Этаж2 из 12
Год постройки2017
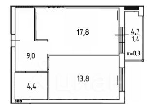
В продаже евро-двушка в ЖК "Цветной Бульвар" Один из лучших жилых комплексов Калининграда! • О квартире: Евро-планировка! Площадь квартиры 49,7 м2. с учетом лоджии, просторная кухня-гостиная 17,8 м2, с выходом на закрытую лоджию 4,7 м2. Жилая комната 13,8 м2, с/узел совмещен 4,4 м2, прихожая с гардеробной 9,0 м2 . В собственности два нежилых помещения для хранения вещей: 7,7 м2, и 12,2 м2, стоимость обсуждается. • Подробнее: В квартире частичный ремонт: теплые полы, санузел полностью готов, в прихожей и на кухне полы керамогранит, стены выровнены под финишную отделку, выполнена электрическая разводка. Из того что необходимо сделать: обои/покраска, потолки, ламинат в комнате, и по мелочи (установить розетки/выключатели и тд). • О жилом комплексе: ЖК Цветной бульвар по праву, один из самых красивых и желанных комплексов Калининграда! Выполнен в архитектуре неоклассицизма. Каждый из семи домов венчает изящная башня со шпилем. Визитная карточка комплекса куранты. Фасады с панорамным остеклением, с элементами ковки и лепнины, с ночной иллюминацией. Подъезды оснащены бесшумными грузо-пассажирскими лифтами. В подвале кладовые помещения, подземный паркинг. Территория комплекса полностью огорожена, оборудована автоматическими воротами, видеонаблюдением Безопасный город. Охрана, участковый пункт полиции. Своя управляющая компания, находится на территории комплекса. • Территория: Три детские площадки с мягким покрытием. Футбольное поле, баскетбольная площадка, теннисный корт, спортивные тренажеры. В зимнее время - ледовый каток. Большой навес-шатер, стол для игры в настольный теннис. Специальные зоны для выгула домашних животных. Роскошное ландшафтное озеленение! • Рядом: Новая новая школа 58 с бассейном, два новых детских сада с бассейнами, Нахимовское военно-морское училище, РАНХиГС. Супермаркет Спар, множество магазинов, пекарни, кафе. Салоны красоты, фитнес-центры, два медицинских центра. До центра города 15 минут на авто. Остановки общественного транспорта. Удобный выезд к морю. • Дополнительно: Более 5 лет, взрослые собственники, полная сумма в договоре, без обременений. Любые формы расчетов: ипотека, сертификаты, материнский капитал. Звоните!
Позвоните автору
Вам ответят на все вопросы

О квартире

Тип жилья

Вторичка

Общая площадь

50 м²

Жилая площадь

14 м²

Площадь кухни

18 м²

Высота потолков

2,8 м

Санузел

1 совмещенный

Балкон/лоджия

1 лоджия

Ремонт

Евроремонт

Перепланировка

Не было

О доме

Год постройки

2016

Количество лифтов

1 пассажирский, 1 грузовой

Тип дома

Монолитный

Тип перекрытий

Железобетонные

Подъезды

3

Придомовая территория

Шлагбаум

Парковка

Подземная

Отопление

Центральное

Аварийность

Нет

Юридические особенности

Несовершеннолетние собственники

Нет

Материнский капитал при покупке

Не использовался

Доступная среда

Вход в подъезд без порога
Есть пандус
Есть лифт от 90 см
Входная дверь от 80 см
Двери в кухне и комнатах 70-79 см
Спросите умного помощника
Получите экспертное мнение о жилье

Расположение

Ипотечный калькулятор
  • Базовая
  • Семейная
  • ИТ-ипотека
  • 20%
  • 30%
  • 40%
  • 50%
лет
  • 10 лет
  • 20 лет
  • 30 лет
Загружаем предложения от застройщика и банков
Помощь риелтора
Проверенный риелтор поможет купить или продать квартиру
8 290 000 ₽
Цена за метр
165 800 ₽/м²
Условия сделки
свободная продажа
Ипотека
возможна
Агентство недвижимости