Мы используем куки-файлы. Соглашение об использовании
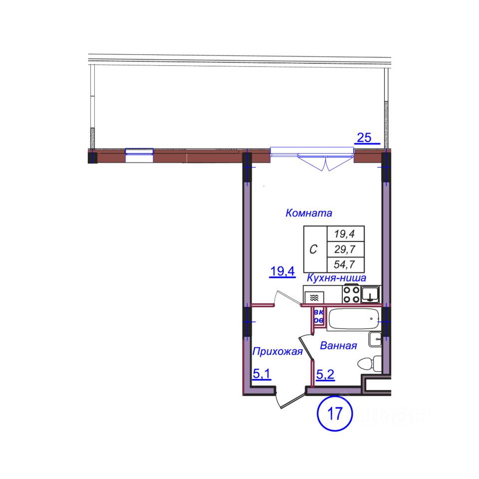
Общая площадь54,7 м²
Жилая площадь19,4 м²
Этаж2 из 7
Год сдачи2030
ДомНе сдан
ОтделкаПредчистовая
Балтийская Резорт — новый гостиничный комплекс премиального формата в Светлогорске, созданный для тех, кто выбирает жизнь у моря без компромиссов или инвестиции с быстрой окупаемостью. А может быть все сразу. Первый в Светлогорске прямой и комфортный спуск к морю, без перепадов высоты, для тех, кто не любит кардио нагрузки и лестницы. Собственная экосистема сервиса — здесь каждый день напоминает об отдыхе, даже если вы приехали всего на выходные. Главная особенность комплекса — масштабная инфраструктура уровня курорта. Первое место в Светлогорске где можно задержаться до полуночи. В составе Балтийская Резорт: • Флагманский СПА-комплекс от создателей "Баден Аква СПА" с бассейном и зонами релакса • Современный фитнес-центр • Бильярд, караоке и ресторан — центр притяжения для отдыха и встреч • Уютные зоны для работы • Прачечная, супермаркет, салон красоты, сервисная компания • ЗАГС и площадки для церемоний в парке, у моря и на кровле • Подземный паркинг, охрана, видеонаблюдение Жить в Балтийская Резорт — значит иметь собственный мир у моря, где быт решается автоматически, а время принадлежит вам. Инвестиционная привлекательность. Балтийская Резорт — это не только премиальный уровень жизни, но и сильная инвестиционная модель: • Проект расположен в топовой туристической зоне Светлогорска — высокий стабильный спрос на аренду круглый год. • Апартаменты могут передаваться в управление — полностью пассивный доход без вашего участия. • Капитализация проекта по прогнозам — 130%+ к вводу в эксплуатацию. • Стартовая цена существенно ниже будущей рыночной стоимости — редкая возможность зайти "на старте" в один из самых сильных проектов региона. Качество и стандарты: • Потолки 3 метра, большие окна, продуманная архитектура • Апартаменты в отделке White box в подарок и возможностью передачи в управление • Собственная управляющая компания и сервис под ключ • ДДУ, ФЗ-214 • Ипотека, рассрочка, 100% оплата Звоните — проведём презентацию, подберём планировку и рассчитаем инвестиционный потенциал вашей покупки. Проектная декларация размещена на сайте наш.дом.рф Предложение ограничено. *Не является публичной офертой. Указанные цифры являются прогнозными. Расчет выполнен по состоянию на декабрь 2025. Реальная доходность может отличаться от расчетной и зависит от множества факторов, включая рыночную конъюнктуру, расходы на содержание объекта (налоги, ремонт, коммунальные платежи), а также возможные периоды простоя. Данный расчет не является гарантированным и не представляет собой финансовую рекомендацию.

О квартире

Тип жилья

Новостройка / Апартаменты

Общая площадь

54,7 м²

Жилая площадь

19,4 м²

Высота потолков

3 м

Санузел

1 совмещенный

Балкон/лоджия

1 балкон

Отделка

Предчистовая

О доме

Количество лифтов

2 грузовых

Тип дома

Монолитно-кирпичный

Пандус

Есть

Понравилась квартира — узнайте о ней больше

Застройщик ответит на все вопросы

Отделка квартиры

Предчистовая — остаётся установить сантехнику, розетки, двери и навести красоту: поклеить обои и уложить на пол покрытие
Похоже на то, что вы ищете?

Акции в ЖК «Гостиничный комплекс Балтийская Резорт»

Узнайте про персональные условия и дополнительные скидки при покупке квартиры у застройщика
Ипотечный калькулятор
  • Базовая
  • Семейная
  • ИТ-ипотека
  • 20%
  • 30%
  • 40%
  • 50%
лет
  • 10 лет
  • 20 лет
  • 30 лет
Загружаем предложения от застройщика и банков

Расположение

Корпус проверен наш.дом.рф
Обновлено 10 марта 2026
  • Нет в реестре проблемных объектов
  • Застройщик не банкрот
  • Есть эскроу счёт
  • Актуальные фото стройки

Ещё квартиры в жилом комплексе

397 квартир в продаже · Сдача в 3 кв. 2030
Автор объявления

Застройщик «К8 Комплексный девелопмент»

«К8 Комплексный девелопмент» Работаем с 2008 года и сейчас «К8 Комплексный девелопмент» — один из крупнейших застройщиков Калининградской области. Мы активно создаем знаковые проекты («Рыбная Деревня», «Фридланд», «Теодор Кроне» в Калининграде и 5-звездо...
14 837 649 ₽
Цена за метр
271 255 ₽/м²
Условия сделки
долевое участие (214-ФЗ)