Мы используем куки-файлы. Соглашение об использовании
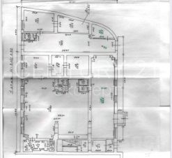
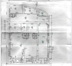
Площадь224 м²
Этаж1 из 3
Отчёт о привлекательности объектаУзнайте, насколько помещение и район подходят для вашего бизнеса
Что входит в отчёт
  • Охват населения
  • Пешеходный трафик
  • Автомобильный трафик
  • Средний бюджет семьи по району
  • Арендные ставки рядом
  • Точки притяжения
  • Конкуренты в радиусе 1 км
  • Рекомендации по выбору места для бизнеса
Продам первый этаж в центре города — отличная инвестиция! Предлагается на продажу первый этаж современного здания в самом сердце города. Территория полностью огорожена, охраняется и готова к вашему бизнесу или дальнейшей аренде. На данный момент все помещения сданы в аренду — стабильный доход обеспечен! Возможен выбор: купить только первый этаж или расширить инвестицию, приобретя второй или третий этаж. Также есть возможность приобрести здание полностью для большего масштабирования. Преимущества: Расположение в центре города, высокий пешеходный и автомобильный трафик Огороженная территория для безопасности Готовый доход от сданных помещений Гибкие условия покупки Не упустите возможность стать владельцем выгодной недвижимости в центре! Звоните прямо сейчас для обсуждения и бронирования.
lock

Войдите или зарегистрируйтесь
для просмотра информации

Просматривайте условия сделки и всю информацию об объекте
Сохраняйте фильтры в поиске и не вводите заново
Доступ к избранному с любого устройства
Неограниченное добавление в избранное
Позвоните автору
Вам ответят на все вопросы
Остались вопросы по объявлению?
Позвоните владельцу объявления и уточните необходимую информацию.
  • Инфраструктура
  • Похожие рядом
Помощь надёжных риелторов
Риелтор партнёр Циан поможет купить или продать любую недвижимость
19 000 000 ₽
255 733 $
214 571
Цена за метр
84 822 ₽
Налог
НДС включен: 3 426 229 ₽
Агентство недвижимости
Документы проверены