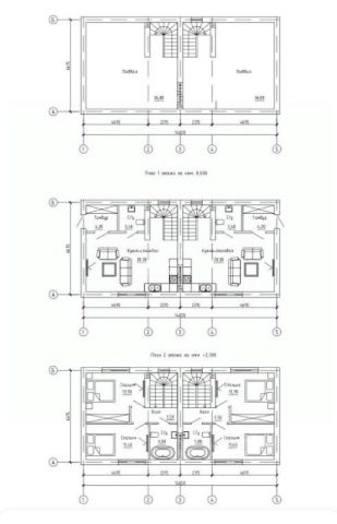
Просторная блок-секция 136,3 м² на ул. М. Цветаевой, 4 (Сельма) ЛОКАЦИЯ: Адрес: г. Калининград, ул. Марины Цветаевой, 4 (Ленинградский р-н). Ориентиры: ул. Горького, Рассветная, Согласия, Ивана Сусанина, Гайдара. Транспорт: В 10 минутах пешком станция Сельма — скоростная Ласточка доставит вас в центр города за 7 минут, а к морю — за 25 минут без пробок. Инфраструктура: В шаговой доступности топовые школы города (Гимназия 40, Школа 59), Дворец спорта Янтарный, новая поликлиника на Согласия, супермаркеты Spar и Виктория. Дом расположен в месте с отличным транспортным сообщением. В 57 минутах ходьбы находятся остановки СК Янтарный, ул. Согласия и пер. Рассветный: Автобусы: 1, 10, 23, 40, 48. Маршрутные такси: 68, 70, 75, 82. Троллейбусы: 2, 7 (ост. пер. Рассветный). Вы легко сможете добраться в любую точку города: к Южному и Северному вокзалам, Центральному рынку или площади Победы. ТОЧНЫЙ МЕТРАЖ ПО ЭТАЖАМ (4 УРОВНЯ): 1. ЦОКОЛЬНЫЙ ЭТАЖ — 36.8 м² Высокое сухое помещение со свободной планировкой. Состояние: черный ключ. Идеально под мастерскую, спортзал или большую систему хранения. 2. ПЕРВЫЙ ЭТАЖ — 35.9 м² (Дневная зона): Кухня-гостиная: 28.3 м² — просторное светлое пространство. Прихожая (тамбур): 4.2 м² и гостевой санузел: 3.4 м². Состояние: частично серый ключ(стяжка, разводка коммуникаций). 3. ВТОРОЙ ЭТАЖ — 33.6 м² (Зона сна): Две изолированные спальни: 13.7 м² и 11.4 м². Ванная комната: 5.0 м² и холл: 3.5 м². Состояние: частично серый ключ. 4. МАНСАРДА — 30.3 м² (Жилой уровень): Жилая комната: 26.6 м² (согласно чертежу). Дополнительный санузел: 3.7 м². Состояние: черный ключ. Отличная возможность сделать ремонт под себя. ТЕХНИЧЕСКИЕ ХАРАКТЕРИСТИКИ: Стены: Капитальный керамический блок (экологично и очень тепло). Отопление: Автономное газовое(двухконтурный котел установлен). Коммуникации: Все центральные (свет, газ, вода, канализация). Участок: 2 сотки (ИЖС) в собственности. Огороженная территория, место для парковки. ПОЧЕМУ ЭТО ВЫГОДНО: Дом продается в текущем состоянии (частично черный / частично серый ключ). Это позволяет вам видеть качество постройки, иметь доступ ко всем узлам коммуникаций и не переплачивать за чужой косметический ремонт. Итого по площадям: Звоните! Показ в удобное для вас время. Полное юридическое сопровождение сделки. Продам таунхаус на улице Марины Цветаевой в городе Калининград.





























































