


230 619 ₽/м²
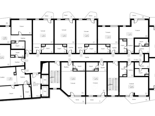
Представляем вам уникальный проект в Светлогорске жилой комплекс Морская нота. Это место, где природа и комфорт сливаются в единую симфонию, создавая идеальные условия для жизни и отдыха. Архитектура и удобства Комплекс состоит из 16 пятиэтажных домов, каждый из которых оснащен лифтом для вашего удобства. Мы позаботились о создании безбарьерной среды, чтобы каждый житель чувствовал себя комфортно. В домах предусмотрено автономное отопление, что гарантирует тепло и уют в любое время года. Разнообразие планировок В первом доме ЖК Морская нота представлены уютные студии и однокомнатные квартиры различных планировок. Просторные открытые балконы и остекленные лоджии позволяют наслаждаться свежим морским воздухом и потрясающими видами на окрестности. Идеальное расположение Комплекс расположен в непосредственной близости к морю, что позволяет вам ежедневно наслаждаться музыкой волн и свежестью бриза. Отличная транспортная доступность обеспечивает легкий доступ ко всем необходимым объектам инфраструктуры города Светлогорска и города Калининграда. Безопасность и комфорт Ваша безопасность наш приоритет. Комплекс оборудован современными системами видеонаблюдения, чтобы вы могли жить спокойно и уверенно. Двор без машин обеспечивает безопасность ваших детей и спокойствие для всей семьи. Отделка Выполнена стяжка пола, оштукатурены стены. Разведённые коммуникации (электрика, вода, газ). Установлены счётчики, домофон. Квартира от застройщика Покупка квартиры напрямую от застройщика это гарантия качества и надежности. Мы предлагаем выгодные условия приобретения жилья в новостройках. При покупке квартир в данном ЖК вы можете использовать любые сертификаты и любые ипотечные программы (семейная, IT). Так же вы можете воспользоваться беспроцентной рассрочкой от застройщика. В продаже имеются кладовые помещения Откройте для себя жизнь у моря с жилым комплексом Морская нота здесь каждая деталь продумана для вашего комфорта! *условия по рассрочке уточняйте у менеджера.




































































































































































