


130 000 ₽/м²
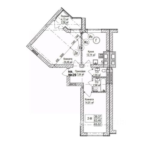
Готовая квартира в сданном доме! ЖК "Комфоpт" расположен в пешей доступности от Балтийского моря в г. Зеленоградске. 2-комн. квартира 2 этаж ЖК "Комфорт" - это уютный квартал с детскими площадками и прогулочными зонами, магазинами и другими необходимыми для комфортной жизни объектами. Разумный выбор для тех, кто хочет жить у моря с комфортом, без городской суеты, толп туристов и переплат за первую линию побережья! Рядoм останoвки транспорта, магазины. До Зеленоградска всего несколько минут на автомобиле. Можно без проблем дойти пешком! Район развивается, скоро откроется новый торговый центр. • Отделка "серый ключ" - стяжка на полу, коммуникации спрятаны, стены оштукатурены • Высокие потолки • Стены из керамического кирпича • Лифты • Лоджии • Двери и окна с тепло- и шумоизоляцией • Автономное отопление с двухконтурным газовым котлом. Возможны дистанционная демонстрация квартиры и оформление сделки! Подарки от застройщика: умный дом от Сбера! Комплект устройств для комфортной и безопасной жизни: датчики движения и протечек, умные лампы и другие девайсы. Узнайте больше в отделе продаж застройщика! Позвоните нам и мы с радостью ответим на все вопросы и запишем вас на просмотр квартиры.
























































































