Первичная продажа



4 акции
дом сдан
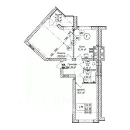
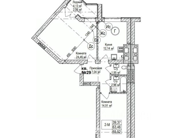
8 515 000 ₽
130 000 ₽/м²
ГОТОВАЯ КВАРТИРА У МОРЯ В ЗЕЛЕНОГРАДСКЕ.
Дома сданы в 2025 году, можно заезжать. Последние свободные квартиры в ЖК "Комфорт" 1-2 очереди.
Балтийское море в пешей доступности
г. Зеленоградск
Прямая продажа от застройщика
Семейная ипотека 6%
Подарок - умный дом от Сбера
О ЖИЛОМ КОМПЛЕКСЕ
ЖК "Комфорт" - это уютный, уже сформированный квартал у моря:
5-7 этажей с лифтами
детские площадки и прогулочные зоны
магазины, кафе, сервисы - рядом и в самом ЖК
остановки транспорта
10 минут до Куршской косы на авто
несколько минут до центра Зеленоградска
35 минут до Калининграда
Разумный выбор для тех, кто хочет жить у моря с комфортом, без городской суеты, толп туристов и переплат за первую линию побережья!
О КВАРТИРАХ
• Отделка "серый ключ" - коммуникации спрятаны, стены оштукатурены, полы залиты
• Высокие потолки
• Лоджии и террасы
• Двери и окна с тепло- и шумоизоляцией
• Автономное отопление с двухконтурным газовым котлом.
О ЗАСТРОЙЩИКЕ
Строим с 2014 года в Калининграде и области. Сопровождаем клиента на всех этапах - от подбора квартиры до регистрации сделки. Работаем только с эскроу-счетами - ваши средства защищены! Возможна дистанционная покупка и онлайн-сделка.
Позвоните или напишите нам - расскажем о планировках, условиях покупки и запишем на просмотр. Купить квартиру в готовой новостройке в Зеленоградском районе Калининградской области.



























































































































































