


204 700 ₽/м²
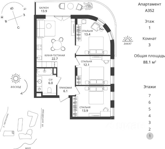
Квартира 24. Жилой комплекс "Светлогорск-3" - это островок тишины и уюта в 300 метрах от Балтийского моря, сочетающий самые современные удобства мегаполиса с комфортом загородной жизни. Выбирайте то, что по душе именно Вам: уютная однокомнатная квартира, элегантная двухкомнатная или просторные двухуровневые квартиры в любом варианте Вы получаете воплощение надежности и уюта. Каждая квартира жилого дома отличается продуманной планировкой, которая максимально эффективно позволит использовать пространство помещений. Красивые фасады с витражным остеклением балконов будут непременно радовать глаз, впрочем, как и множество деревьев и зеленых насаждений на территории благоустроенного жилого квартала. Вашим детям, несомненно, понравится играть на современных и безопасных детских и спортивных площадках, гонять на велосипедах по специальным дорожкам. Бесспорным плюсом для Вас и Ваших гостей станут бесплатные парковки. Свою лепту в озеленение внесут ландшафтные дизайнеры. Словом, "Светлогорск-3" обеспечит новоселам максимальный уровень комфорта и удобства в экологически чистой загородной зоне. 3-комнатной квартиры с евроремонтом в Светлогорске.














































































































































