


320 000 ₽/м²
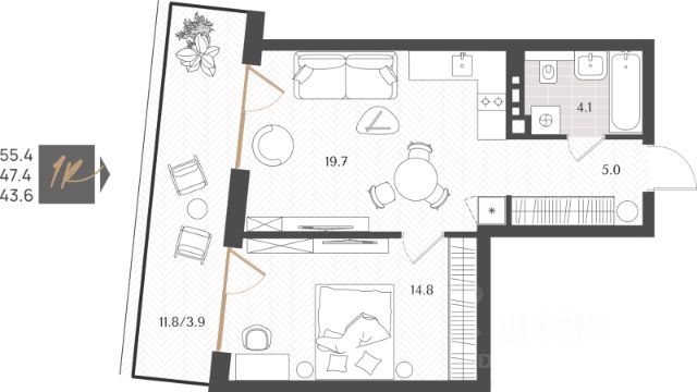
1-к апартаменты в Otrada Resort — универсальный формат, обеспечивающий идеальный баланс аренды, капитализации и ликвидности. Финансовые преимущества проекта: Доходность около 1,5 млн руб./год Потенциал капитализации — около 33% Комплекс создан как автономная курортная среда: 1 минута - прямой доступ к спуску к морю. В окружении исторического леса.Собственное живописное озеро в центре комплекса.Лаундж-зоны у воды.Премиальный СПА-комплекс с бассейном, термальными зонами, массажами, оздоровительными программами.Гостиница Hotel Lesnoe — дополнительный поток гостей, который усиливает заполняемость всего комплекса.Фитнес-центр, спортивные пространства, зоны йоги.Ресторан, кофейни, сервисы питания — всё находится внутри резиденции.Коммерческие помещения.Коворкинг, игровые зоны, каршеринг.Охрана, видеонаблюдение, контроль доступа. Федеральная профессиональная сервисная компания. Это ваш полностью пассивный доход: • полное управление объектом • маркетинг, реклама, продажи • обслуживание апартаментов • контроль качества и технический сервис • "котловой" метод распределения прибыли Рассрочка 0% При взносе 3050% доступна рассрочка от застройщика: — вы фиксируете цену — не переплачиваете — снижаете нагрузку — увеличиваете итоговую доходность 1-к апартаменты в Otrada Resort — это инструмент долгосрочной доходности на рынке курортной недвижимости. 35.1 — прихожая 7,7 м² 35.2 — кухня-столовая 13,2 м² 35.3 — жилая комната 18,0 м² 35.4 — санузел 5,3 м² 35.5 — лоджия 3,6 м² Общая площадь апартаментов: 47,8 м²











































































