


133 000 ₽/м²
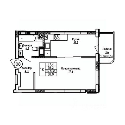
Теодор Кроне — современный жилой квартал комфорт+ класса в самом сердце Центрального района.Здесь всё продумано для тех, кто ценит качество, эстетику и полноценную жизнь рядом со всем необходимым. Удобный выезд на основные транспортные развязки — вы быстро доберётесь в любую точку города. Главная особенность новых очередей ЖК "Теодор Кроне" — уникальная концепция комьюнити-центра, объединяющего 99% повседневных сервисов прямо в пределах жилого квартала. Экосистема заботы, удобства и общения. На территории комплекса: - СПА-центр и фитнес-зал - Современный коворкинг - Кафе-пекарня и магазин у дома - Поликлиника и аптека - Детский клуб и бьюти-салон - Прачечная и пункт химчистки - Управляющая компания с дополнительными сервисами: прокат, домашний мастер, клининг. Жить в Теодор Кроне — значит тратить меньше времени на быт и больше на себя. Природа и уют в шаге от дома. Благоустроенная территория с набережной и собственным озером, прогулочными и велосипедными маршрутами, детскими площадками и уютным парком "Теодор Кроне" создаёт атмосферу отдыха и вдохновения каждый день. Качество и стиль. - Предчистовая отделка White Box — чтобы вы могли реализовать свой дизайн без лишних хлопот. - Дизайнерские входные группы и лобби.- Квартиры по ДДУ, ФЗ 21. - Оплата: ипотека, рассрочка от застройщика или 100% оплата. Звоните — покажем квартиру и проведём консультацию в удобное для вас время! Застройщик: ООО "СЗ Эко-Город". Проектная декларация размещена на сайте наш.дом.рф Предложение ограничено. Срок действия акции — до 01.10.25 или до её отмены застройщиком. Продам 1-комнатную квартиру в новостройке в районе Центральный в городе Калининград.




















































































































































